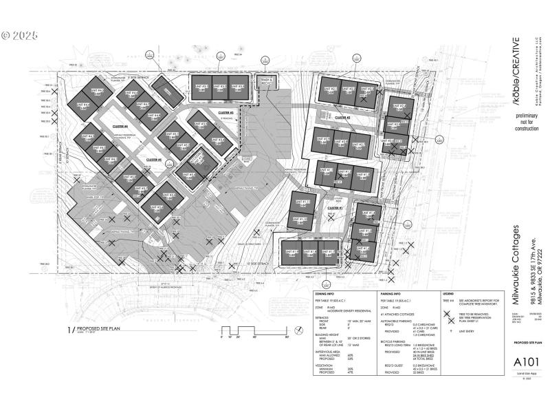
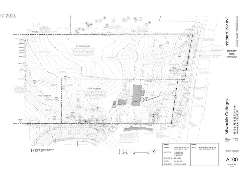
Exceptional 2.51-acre shovel-ready development opportunity approved for a 41-unit cottage cluster community in Milwaukie. Type II land-use approval and a complete architectural, civil, and landscape plan set are included, featuring 2- and 3-bedroom cottages across five clusters with generous shared courtyards. The plan provides 61 on-site parking spaces, 64 long-term and guest bike spaces, engineered stormwater facilities, and fully designed utility connections. All preliminary planning, mapping, floor plans, elevations, grading, and tree preservation work are completed. Prime location near the Willamette River, Waverley Country Club, and Sellwood, offering strong market appeal and streamlined path to construction. A rare, ready-to-build infill opportunity for developers or investors.
Tacoma St to 17th Ave
Dwelling Type: Land
Subdivision: N/A
Year Built: N/A, County: US
Tacoma St to 17th Ave
Listing is courtesy of Premiere Property Group, LLC
Sign in to your account to continue