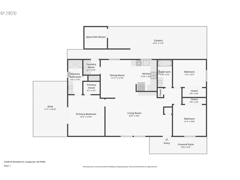
Welcome to Springlake — a highly sought-after 55+ gated community offering peaceful, lakefront living just minutes from town. This well-kept 2-bedroom, 2-bathroom manufactured home with a third room currently used as a lake view sitting/reading room that sits directly on Spring Lake, providing beautiful water views from the deck and main living areas. The home features a bright and open single-level layout with a spacious living room, cozy dining area, and a practical kitchen that includes appliances and plenty of cabinet storage. Additional bedrooms share a full guest bath. The home also features a laundry room with washer and dryer, a covered carport with enclosed storage shed, and a spacious deck overlooking the lake. Springlake residents enjoy meticulously maintained grounds, a clubhouse, library, walking paths, and a welcoming calendar of community events. The $16,000 park buy-in is included in the sale.
HWY30 TO HIGH SCHOOL WAY(R) TO 6TH (R) INTO PARK (L) ON WESTLAKE DR
Dwelling Type: Residential
Subdivision: N/A
Year Built: 1996, County: US
HWY30 TO HIGH SCHOOL WAY(R) TO 6TH (R) INTO PARK (L) ON WESTLAKE DR
Listing is courtesy of Redfin
Sign in to your account to continue