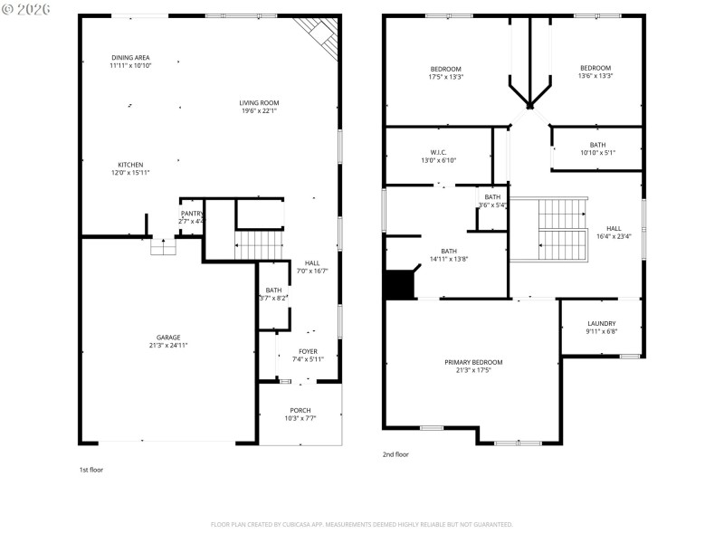
Welcome to this beautifully updated 3-bedroom, 2.5-bathroom home offering 2,623 sq. ft. of spacious, luxurious living. Extensively remodeled in 2020, the home features custom engineered hardwood flooring, a gorgeous modern kitchen with upgraded quartz countertops, a gourmet double oven, custom display cabinetry and loads of storage space. The expansive primary suite includes a fully renovated bathroom and a walk-in closet with custom, built-in features that maximize its use. Located around the corner from Frances Street Park and conveniently located near shopping, food carts and schools, this home has it all! [Home Energy Score = 5. HES Report at https://rpt.greenbuildingregistry.com/hes/OR10237465]
Century to Frances to 63rd to Jess Ct
Dwelling Type: Residential
Subdivision: N/A
Year Built: 2007, County: US
Century to Frances to 63rd to Jess Ct
Listing is courtesy of Premiere Property Group, LLC
Sign in to your account to continue