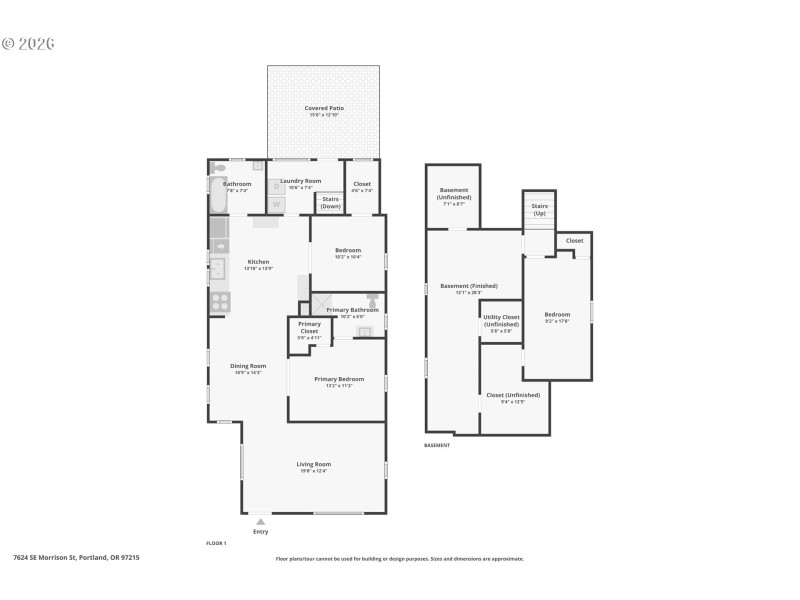
Step right into this darling turn-of-the-century bungalow perched on the edge of Tabor/Montavilla—a cozy charmer that somehow feels like a castle of space! Imagine waking up in your main floor primary bedroom, complete with an en-suite bathroom—a truly rare gem that makes daily life feel like a breeze. With two more bedrooms—both featuring walk-in closets—and an additional flexible space that could be your playroom, office, or extra bedroom, this home bends and twists to fit your every fancy. And oh, the basement! A treasure trove of abundant storage awaits your secrets and stashes. Sip your morning coffee or wave to neighbors from the quaint, covered front porch—or sneak away to a covered back deck perfect for every season’s whimsy. The backyard? Oh, the backyard! It’s a perfect playground for gardens, games, or daydreams, with gate access to the alley and a shed ready to cradle your tools, toys, and treasures. A generous lot offers plenty of room for your RV, trailer, or trusty vehicles—space, space, and more space! And fear not, for all the major systems have been refreshed in recent years. Added peace of mind comes with Ring window and door sensors, a Ring alarm keypad, an interior motion sensor, and a keypad front door lock. This means your new adventure begins with confidence, leaving you free to sprinkle your own magic without a single worry about updates or repairs. Start your day with a walk at Mount Tabor and wind down with the lively dining, cafe and bar scene on Stark Street just minutes away. This home is ready to be your happily ever after! [Home Energy Score = 7. HES Report at https://rpt.greenbuildingregistry.com/hes/OR10243608]
Xstreet - SE 76th Ave
Dwelling Type: Residential
Subdivision: N/A
Year Built: 1894, County: US
Xstreet - SE 76th Ave
Listing is courtesy of Redfin
Sign in to your account to continue