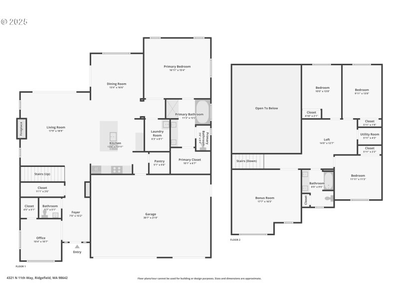
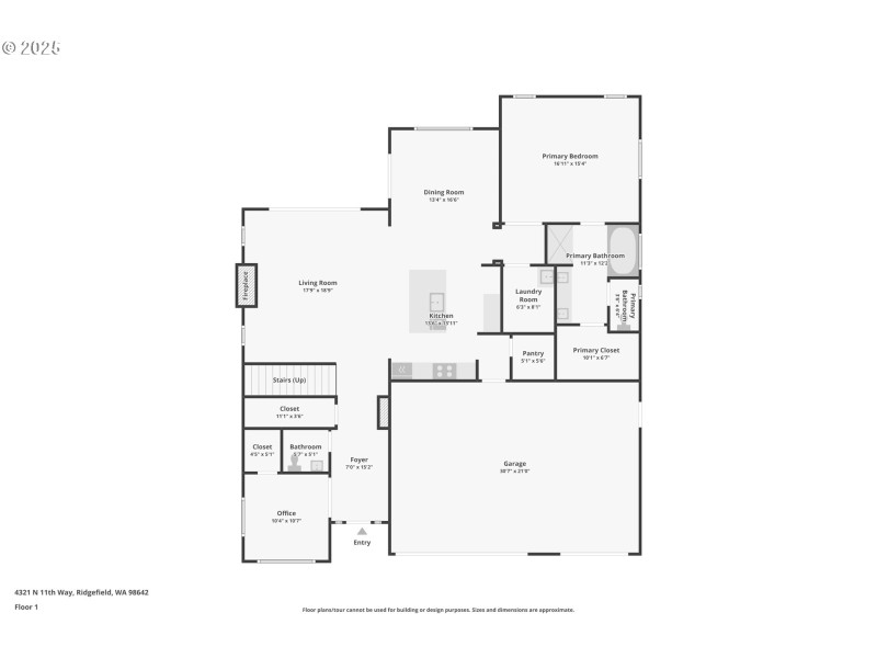
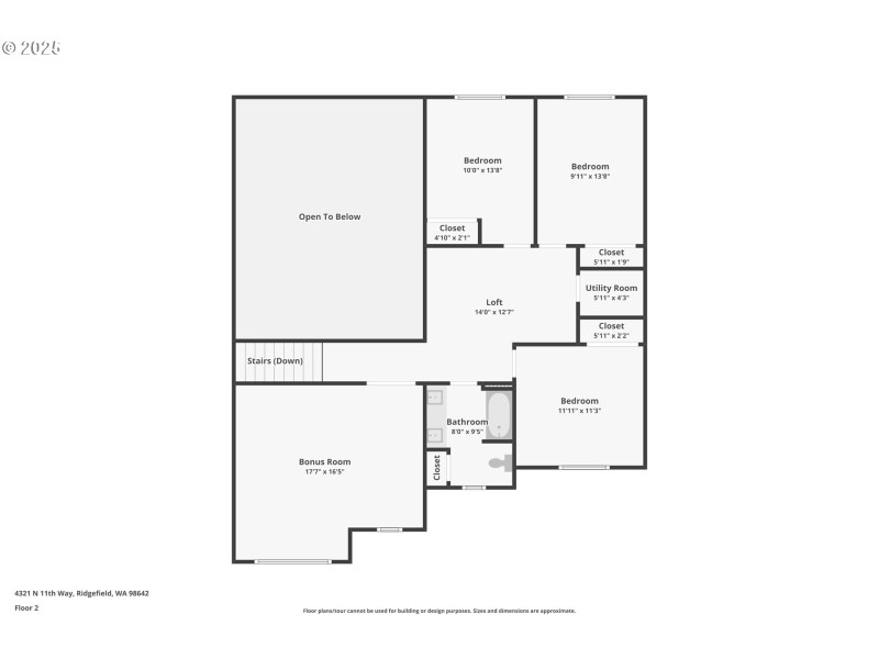
Welcome home to the Bainbridge, our most versatile primary-on-main floor plan! Walking in the front door, past the den and bathroom, you come into the grand 18 foot tall two story great room full of natural light. From there you go into the kitchen perfect for entertaining with its massive sit-in waterfall quartz island. Across the kitchen is the dining room with access to the covered patio through an incredible 12 foot wide glass sliding door. Adjacent to the kitchen, behind double doors is the owners retreat. Between the bedroom and large walk-in closet is the bathroom with a two sink vanity, soaking tub and shower. At the top of the stairs, to one side is the recreation room, a full bath with double sinks, and one of three bedrooms. Across the large open hallway are the other two rooms looking out onto the backyard. This home is full of upgrades, including quartz countertops throughout, no carpet on the main, high end appliances and upgraded flooring. This home is Energy Star NextGen certified. 2 yr builder warranty + 2-10 Home Buyer Warranty gives you peace of mind for years to come!
N Royle Rd & N 13th St
Dwelling Type: Residential
Subdivision: Paradise Pointe
Year Built: 2025, County: US
N Royle Rd & N 13th St
Listing is courtesy of New Tradition Realty Inc