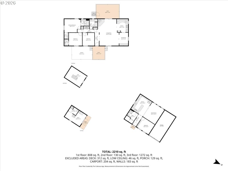
Lots of potential to own a hobby farm just outside of town. Bring your tools and your imagination to bring this home back to life. Septic is a newer system approved for 3 bedrooms. The shop has been partially converted to living space with a bedroom, kitchen, LR and an incomplete bathroom. An additional shed was turned into livable space with a bathroom, kitchen, and a loft bedroom. Shop ADU and shed ADU work was done partially by a licensed contractor but not permitted so the home will not finance with FHA or VA financing. Shop still has a 1 car garage. MFG Home has 3 bedrooms and 2 bathrooms. Home sits on 2 parcels for a total of 1.350 acres and has a duck enclosure, garden space, and a chicken coop.
N. Kelso Ave turns into Holcomb Road running adjacent (East Side) to I-5. Turn Left onto North Ave,
Dwelling Type: Residential
Subdivision: N/A
Year Built: 1980, County: US
N. Kelso Ave turns into Holcomb Road running adjacent (East Side) to I-5. Turn Left onto North Ave,
Listing is courtesy of Windermere Northwest Living
Sign in to your account to continue