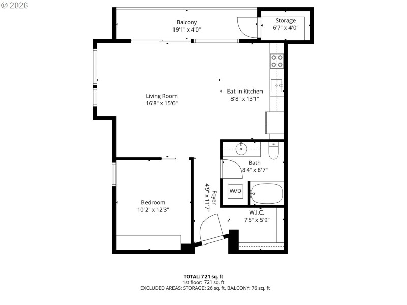
Don’t miss this truly rare 1-bedroom corner unit at Killingsworth Station, designed to maximize natural light with two walls of floor-to-ceiling solar windows, southern exposure, and an east-facing bedroom that welcomes the morning sun. Energy efficient and earth friendly with high ceilings, transom windows with integrated shelving, bamboo floors, and in-unit laundry create a space that feels open, warm, and thoughtfully designed. The open kitchen pairs quartz countertops with Energy Star stainless steel appliances and clean, modern finishes that feel intentional yet effortless. A private patio extends the living space outdoors, perfect for morning coffee, evening unwinds, or enjoying views of Mt Hood and the West Hills. Additional storage both at the entry and on the patio offers flexible space for bikes, gear, or a tucked-away home office. HOA includes water, sewer, trash, solar hot water, maintenance, and upkeep of the interior and exterior. Killingsworth Station is a LEED Platinum–certified, dog-friendly building with secure entry with remote access, covered deeded parking, elevators, and bike storage on every floor. The living roofs and bioswales reflect the building’s thoughtful sustainability, while the location places some of North Portland’s best spots just outside your door. La Perlita, Milk Market, Old Gold, and Pollo Bravo are all close by. Minutes to I5 and the Max.
North Killingsworth & Interstate
Dwelling Type: Residential
Subdivision: N/A
Year Built: 2012, County: US
North Killingsworth & Interstate
Listing is courtesy of Urban Nest Realty
Sign in to your account to continue