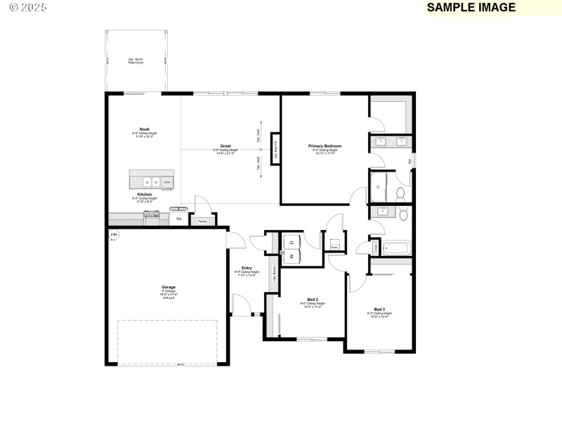
HOMES STARTING AS LOW AS $419,900. 1648 floor plan. This floor plan is a one level 3 bedroom, 2 bath home with 2 car garage on large home-site. Welcome to one of Manor Homes newest communities Mt. Solo Place. This beautifully maintained new home community is located in Longview, WA. Manor Homes newest community features custom designed one and two story homes that showcase the quality, flexibility, craftsmanship and options you would want and expect in your new home. We welcome you to inquire about these exciting new floor plans, features & community built by one of the top local builders. Beautiful new home community with large home-sites. Homes include quartz countertops, custom cabinetry & black appliances in the kitchen. Large & inviting open concept great rooms open to outdoor living with backyards perfect for entertaining guests or outdoor BBQs. Spacious primary suites with walk in closets. Primary bathrooms feature a full shower and a double-sink vanity. Featuring brushed nickel door hardware, sleek chrome faucets, and high-end modern lighting that adds a sophisticated touch throughout the home. Landscaped front yards & fenced backyards. A/C included. Optional 3 car garages available on some of the floor plans. Construction of these homes will be starting in July with estimated completion in January. 2-10 homebuyers warranty included. Inquire today. We have a model home in Vancouver available to view by appointment. MODEL HOME OPEN WEDNESDAY-SUNDAY FROM 12PM-5PM AT OUR PLEASANT WOODS LOCATION LOCATED AT 5000 NE 113TH LOOP VANCOUVER, WA 98686. Manor Homes boasts 9 new home communities spanning Clark & Cowlitz county, providing a comprehensive range of options to find your ideal home.
GPS 2002 HENDERSON WAY LONGVIEW, WA 98632. MANOR HOMES SIGN AT ENTRANCE.
Dwelling Type: Residential
Subdivision: MT SOLO PLACE
Year Built: 2025, County: US
GPS 2002 HENDERSON WAY LONGVIEW, WA 98632. MANOR HOMES SIGN AT ENTRANCE.
Listing is courtesy of West Realty Group, LLC