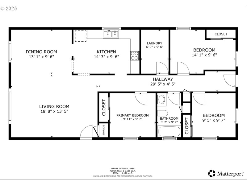
Welcome to 214 2nd Street, a charming single-level home remodeled in 2015 just steps from the Klickitat River. With 3 bedrooms and 1 bathroom, this thoughtfully maintained residence offers a comfortable and functional layout, perfect for full-time living or a weekend retreat.Inside, the large kitchen open to the living area create a bright, welcoming atmosphere, complete with granite countertops and plenty of natural light. Fresh interior and exterior paint happening Fall 2025 adds to the clean, move-in ready feel.Outside, the fenced yard provides space for pets, gardening, or outdoor entertaining. A detached shop and alley access offer excellent storage, workspace, and parking flexibility.Situated less than a block from the river, you’ll enjoy quick access to fishing, kayaking, and the outdoor recreation the Gorge is known for. Whether you’re seeking a peaceful primary residence or a getaway close to nature, this home combines comfort, function, and an unbeatable location in the heart of Klickitat.
N on 142, R on Second
Dwelling Type: Residential
Subdivision: N/A
Year Built: 1922, County: US
N on 142, R on Second
Listing is courtesy of Windermere CRG