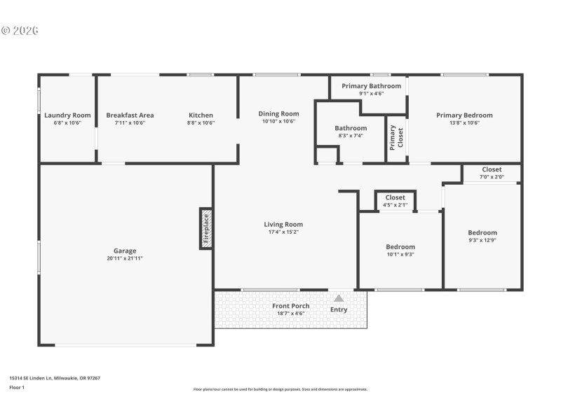
Newly updated one level Mid-Century home ready to move in! Views of wooded area from behind for pricacy! New quartz kitchen counter tops with full subway tile backsplash, and new Luxury vinyl plank floors. Great nook area off the kitchen with sliding glass door leading a 12x19 covered patio! Huge living room with new carpet and has cozy brick fireplace with gas insert that's tempature controlled by remote and has battery back up so it will provide radiant heat during power outage. Mini split Heatpump. Formal dining room. All 3 bedrooms have newly re-finished hardwood floors. Primary suite has a bathroom with walk-in shower. Laundry room with deep sink, Washer & Dryer included. Nice size finished and heated garage! Sprinkler system. Level lot over 10,000 SF with garden areas and mature landscaping. 2 story outbuilding that is 12x9 on each level with additional attached covered storage area. Long paved parking area for smaller RV's, toys or additional veihcles! You will love it! Click on the 3D tour! Please do not park on paved roadway :-)
Oak Grove bvld to south on Linden Lane, then left on private Lane..
Dwelling Type: Residential
Subdivision: N/A
Year Built: 1967, County: US
Oak Grove bvld to south on Linden Lane, then left on private Lane..
Listing is courtesy of John L. Scott Portland South
Sign in to your account to continue