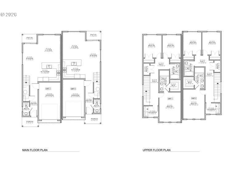
Built by a multi-year Street of Dreams builder and Builder of the Year award winner by the Home Building Association, this brand-new duplex is part of Robbins Place, a thoughtfully planned new 29-unit community in Milwaukie. Each side offers three bedrooms and two and a half bathrooms with 1,472 square feet of efficiently designed living space plus a one-car attached garage. A covered front porch welcomes you home, while the main level features an open-concept layout connecting the kitchen, dining, and living areas for easy everyday living and entertaining. A sliding door leads to a private patio and private, fenced yard off the back of the home, creating a seamless extension of the indoor space. A half bathroom is conveniently located on the main floor for guests. The attached garage includes additional storage, with driveway parking just outside for added convenience. Upstairs, you’ll find all three bedrooms, including a spacious primary suite with its own bathroom and walk-in closet, along with a full laundry room for everyday ease. Built with efficiency, high-end finishes, and durable construction in mind, the home includes a high-efficiency gas furnace, modern insulation standards, and quality materials throughout. A double-framed common wall with a one-inch air gap and insulation between units enhances separation and privacy. Located in Clackamas County, property taxes may be lower than many areas within Portland city limits. Enjoy proximity to Milwaukie Bay Park and the Willamette River waterfront (~1.5 mi), downtown Milwaukie shops and dining (~1.5 mi), New Seasons Market (~1.6 mi), the Milwaukie/Main Street MAX Station (~1.7 mi), and quick access to SE McLoughlin Blvd. With clean architectural design and a smart two-story layout, this new construction duplex offers flexibility for owner-occupants or investors seeking low-maintenance living in a growing Milwaukie location.
Use 15500 SE Wallace Rd, Milwaukie on Maps to Reach Community. Drive on SE Aldona Ct, take first R
Dwelling Type: MultiFamily
Subdivision: OAK GROVE COMMUNITY COUNCIL
Year Built: 2026, County: US
Use 15500 SE Wallace Rd, Milwaukie on Maps to Reach Community. Drive on SE Aldona Ct, take first R
Listing is courtesy of Keller Williams Realty Portland Premiere
Sign in to your account to continue