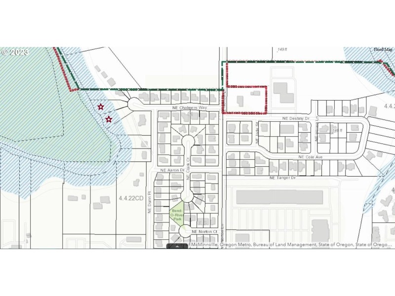
South Yamhill River frontage offering encompassing 0.93ac! 2 lots provide great location for development w/rare opportunity to build 2 legal residences or a single, custom home on just under an acre. Coveted cul-de-sac location w/ample privacy & beautiful river views. Joe Dancer Park & nature tail located across the river w/brushland providing additional privacy to the west. Power already stubbed in at corner of one lot. City water & sewer avail. Listing agent is a party to LLC property owner
Hwy18/NE Three Mile Ln to N on NE Norton Ln. W on NE Chalmers Way. 2455 NE Chalmers Way neighbors
Dwelling Type: Land
Subdivision: Bend-O-River Village
Year Built: N/A, County: US
Hwy18/NE Three Mile Ln to N on NE Norton Ln. W on NE Chalmers Way. 2455 NE Chalmers Way neighbors
Listing is courtesy of The Kelly Group Real Estate
Sign in to your account to continue