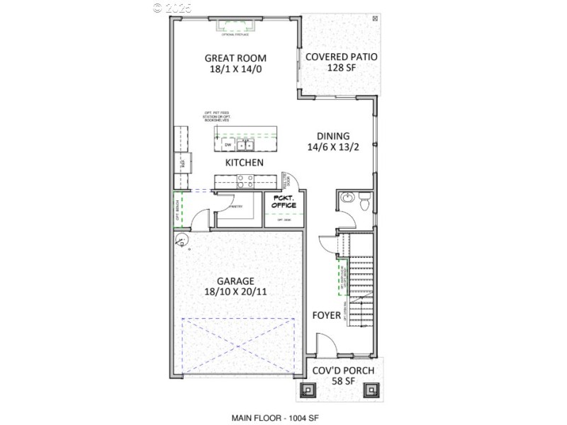
Move in Ready! Ask about Incentives! Introducing the 2184 Plan – modern living with thoughtful design. This open-concept home features a spacious great room with a gas fireplace, a gorgeous kitchen with a large quartz island, walk-in pantry now includes a stainless steel refrigerator! A convenient flex space/pocket office is located off the kitchen on the main floor. Upstairs, you'll find 3 bedrooms and a roomy loft, perfect for a second living space or play area. The spacious laundry room is centrally located between bedrooms for ease. The beautiful primary suite offers double doors, ensuite bathroom with a water closet, as well as an oversized walk-in closet. Enjoy privacy and greenspace views from the covered patio in your fully fenced backyard, complete with rear yard landscaping and irrigation!! Plus, the 3-car garage provides ample space for your vehicles, storage, and more! Come see all that this home has to offer, this home is an incredible value!! Sample photos - actual finishes may vary.
TAKE I-5 N TO EXIT 21, RIGHT ONTO LEWIS RIVER RD. LEFT ON MCCRACKEN RD
Dwelling Type: Residential
Subdivision: ALDER & ASH
Year Built: 2025, County: US
TAKE I-5 N TO EXIT 21, RIGHT ONTO LEWIS RIVER RD. LEFT ON MCCRACKEN RD
Listing is courtesy of Holt Homes Realty, LLC