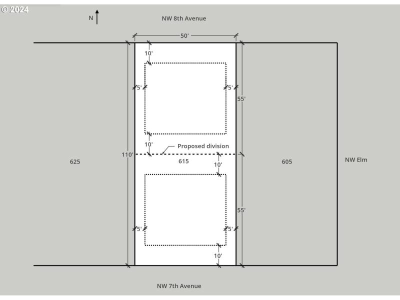
Don't miss this opportunity to purchase this desirable in-fill lot, it has great developmental potential. 2 possible lots, both south facing, with excellent solar access. Perfect for passive or active solar builds, net zero potential. Rare close-in property with access from both NW 7th Ave and NW 8th Ave. NW 8th Ave is a very quiet dead end street with no traffic. Walking distance to Downtown Camas, Forest Home Park, and Benton Park andGreenway. Survey, geotech report, and development pre-app with City already completed. One sewer connection already to site. Accessible water main in NW 8th Ave. PUD approved power connection on north side of NW 7th Ave (don’t need tocross street or install transformer) Designs shown are conceptual only? 2 modest sized houses or a house plus ADU? Property is located 1.5 blocks from future high end mixed use development (26acre Georgia Pacific Lab Property)? Zoned Multifamily Residential (MF-18)
Camas Business Loop Exit, Left on Ivy, Right on 7th Avenue
Dwelling Type: Land
Subdivision: N/A
Year Built: N/A, County: US
Camas Business Loop Exit, Left on Ivy, Right on 7th Avenue
Listing is courtesy of Windermere/Crest Realty Co
Sign in to your account to continue