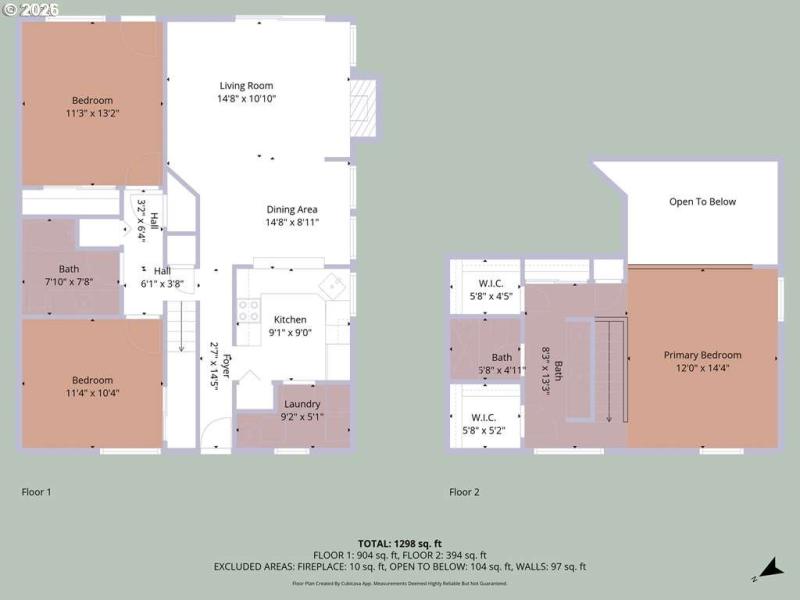
This beautifully kept condo features 3 bedrooms and 2 baths, with a loft-style primary suite upstairs offering double sinks, dual walk-in closets and ample storage. Enjoy a cozy wood-burning fireplace, vaulted ceilings and beautiful green views from your living room. Residents can also take advantage of community amenities including a pool, tennis courts, and public trails.The condo is conveniently located near a variety of amenities. You'll find ample shopping and dining options in the vicinity, including Whole Foods, Washington Square, as well as easy access to RedTail Golf Course. Highway access is also readily available for convenient commuting.
SW Boones Bend DR x SW Consestoga DR
Dwelling Type: Residential
Subdivision: ON THE GREEN CONDOS
Year Built: 1980, County: US
SW Boones Bend DR x SW Consestoga DR
Listing is courtesy of JMG - Jason Mitchell Group
Sign in to your account to continue