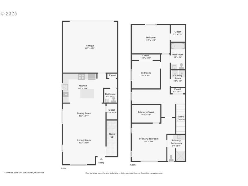
MTG SAVINGS AVAILABLE — BUYERS, DON’T MISS THIS OPPORTUNITY!Step into your new home w/ this beautiful move-in-ready end-unit townhome. Flooded w/ natural light, the open-concept main level features 9-ft ceilings for an inviting atmosphere. The stylish kitchen impresses w/ open concept & ample storage, SS appl, & pantry. Upstairs, enjoy a versatile loft flex space, prim ste w/ W/I closet, shower, & 2 added bdrms. Comfort is elevated w/ dual-zone AC, ductless heat. The 2-car garage adds convenience & storage. The HOA cares for the Yard maintenance, exterior upkeep, & provides access to an exclusive neighborhood dog park. Enjoy sidewalk-lined streets & close proximity to parks & the bustling Vancouver Waterfront. Schedule your showing today
NE 18th, N on 4 Seasons Lane, L on 23rd, L on 115th, L on 22nd Cir
Dwelling Type: Residential
Subdivision: N/A
Year Built: 2019, County: US
NE 18th, N on 4 Seasons Lane, L on 23rd, L on 115th, L on 22nd Cir
Listing is courtesy of Redfin
Sign in to your account to continue