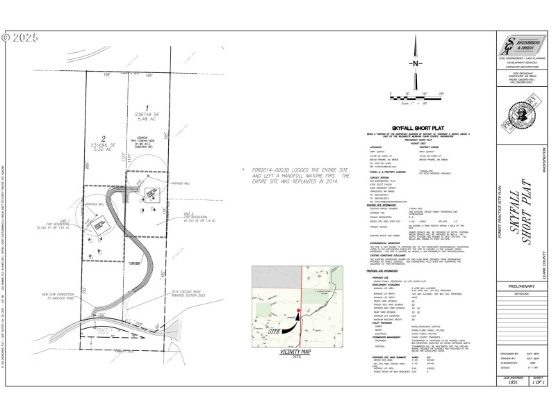
This lot is all about the view!!! Ready to build your dream home with Camas Schools. Beautiful 5.48 acre view parcel located on Livingston Mountain with views of the Columbia River, Mt. Hood, Mt. Jefferson and territory! Perc approved for septic system with electricity, and Xfinity high speed internet is already at the site. Well to be drilled prior to closing and will be shared with lot next to this one which is also for sale.
NE Livingston
Dwelling Type: Land
Subdivision: Skyfall Short Plat
Year Built: N/A, County: US
NE Livingston
Listing is courtesy of Windermere Northwest Living
Sign in to your account to continue