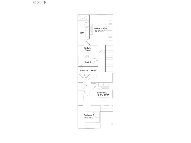
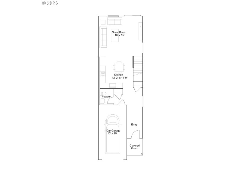
This new construction home is located in Riverwood Crossing, just a short distance to Gibson Hill Park, Golf Club of Oregon, and historic downtown Albany, with Oregon State University just 20 minutes away. The Reece plan features a functional two-story layout with an open-concept main floor that blends a modern kitchen and comfortable great room for everyday living. Upstairs, two secondary bedrooms share the space with a spacious primary suite that includes a full primary bath and walk-in closet. Interior highlights include quartz countertops, shaker-style cabinets, and LVP flooring in the kitchen and bathrooms, along with landscaping and fencing. This home also includes central air conditioning, a refrigerator, washer & dryer and window blinds. Located on homesite #64. MOVE-IN READY! Rendering is artist conception only. Photos are of a similar home, features and finishes will vary. *Flex credit/closing cost incentive available when financing with preferred lender! Use towards rate buydown and closing costs.*
North Albany Rd to Gibson Hill Rd, South on Laura Vista Dr NW, home is on the right
Dwelling Type: Residential
Subdivision: RIVERWOOD CROSSING
Year Built: 2025, County: US
North Albany Rd to Gibson Hill Rd, South on Laura Vista Dr NW, home is on the right
Listing is courtesy of Lennar Sales Corp
Sign in to your account to continue