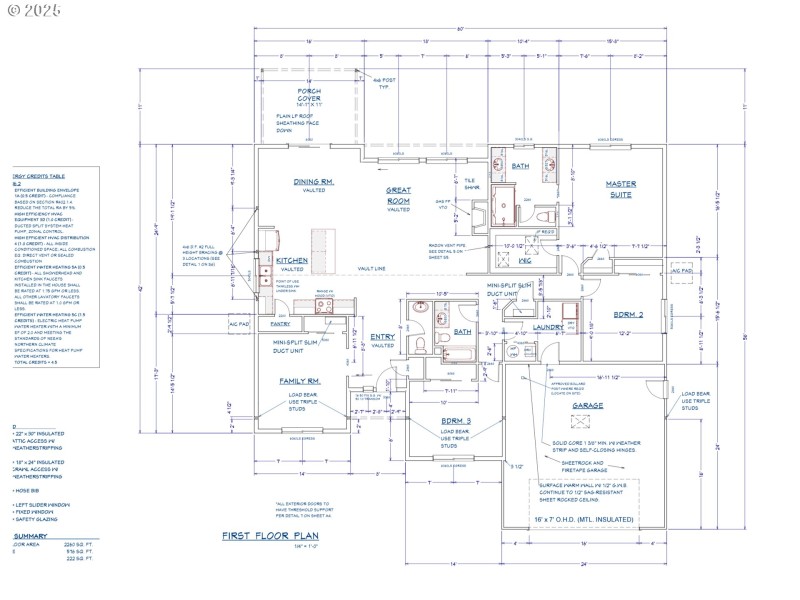
A rare and golden opportunity tucked into the heart of Vancouver. This level, ready-to-build lot hold the beginning of something truly special, existing foundation already poured for a stunning 2,260 sq.ft. Ranch-style home. Imagine the possibilities: with permits ready to be reinstated, you can immediately pick up where the vision left off. Prime location, investor’s dream. Or bring your builder, your dreams and your plans.
NE 49th St, NE 137th Ave, NE 39th St
Dwelling Type: Land
Subdivision: N/A
Year Built: N/A, County: US
NE 49th St, NE 137th Ave, NE 39th St
Listing is courtesy of Keller Williams Realty Portland Premiere