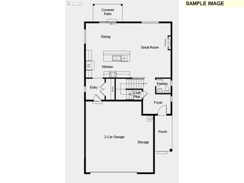
New Construction - November Completion! Built by America's Most Trusted Homebuilder. Welcome to The Laurel at 407 SW 32nd Street in Woodin Creek. Step into space to grow with the 2-story Laurel floor plan. This home features 4 bedrooms, 2.5 bathrooms, a 2-car garage, and 2,264 square feet of open-concept living. The main level offers a welcoming foyer, powder room, spacious great room, casual dining area, modern kitchen with island, and a covered patio. Upstairs includes 3 bedrooms, a full bathroom, loft, laundry room, and a peaceful primary suite with a walk-in closet and spa-like bathroom. Woodin Creek Station in Battle Ground, Washington, is surrounded by nature and adventure. Enjoy nearby Battle Ground Lake State Park and the scenic Vancouver Waterfront with trails, local shops, breweries, and farm-to-table dining. Photos are for Representative Purposes Only. MLS#299865261
Hwy 503 to SW 30th Street - Turn Right onto SW 9th Ave which turns left onto SW 31st Street.
Dwelling Type: Residential
Subdivision: N/A
Year Built: 2025, County: US
Hwy 503 to SW 30th Street - Turn Right onto SW 9th Ave which turns left onto SW 31st Street.
Listing is courtesy of Cascadian King Company L.L.C.
Sign in to your account to continue