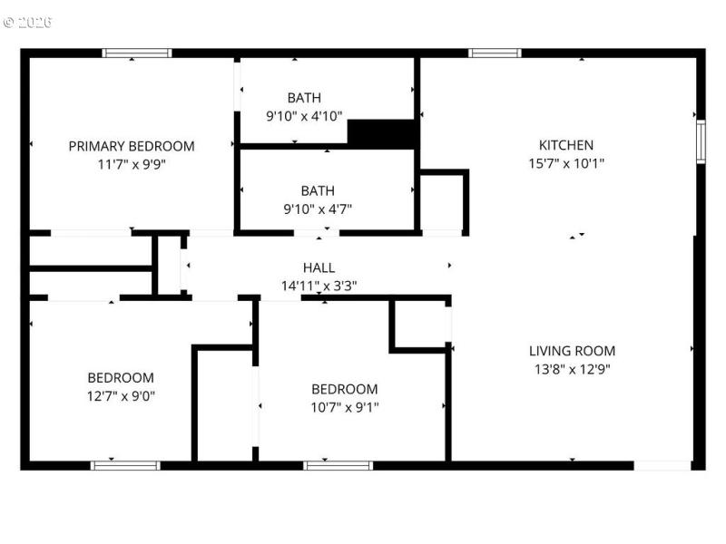
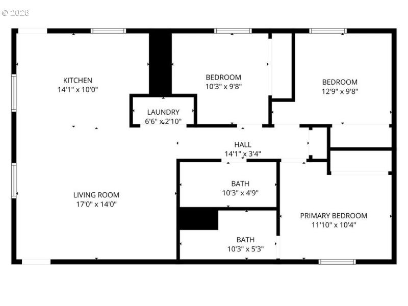
Don’t miss this incredible investment opportunity in Hillsboro! This well-maintained duplex offers the ideal combination of flexibility and income potential. Each spacious unit features 3 bedrooms and 2 bathrooms, with thoughtfully designed floor plans that provide comfortable living and excellent separation of space. Both units offer generous living areas, well-sized bedrooms, and functional kitchens equipped with built-in dishwashers, built-in microwaves, free-standing ranges, and free-standing refrigerators. Each unit also includes its own washer and dryer for added convenience. For ease of management and tenant independence, each unit has separate electrical and water meters. The fully fenced yard adds privacy and usable outdoor space, while ample parking enhances everyday convenience for occupants and guests alike.Located near shopping, dining, schools, and major commuter routes, this property presents a versatile opportunity for investors seeking strong rental potential and long-term value. A rare chance to secure a multi-unit property in a desirable Hillsboro location — schedule your showing today!
From downtown Hillsboro, go north on Main, left on Cornell, right on 4th to 2454 on your right.
Dwelling Type: MultiFamily
Subdivision: N/A
Year Built: 1989, County: US
From downtown Hillsboro, go north on Main, left on Cornell, right on 4th to 2454 on your right.
Listing is courtesy of Knipe Realty ERA Powered
Sign in to your account to continue