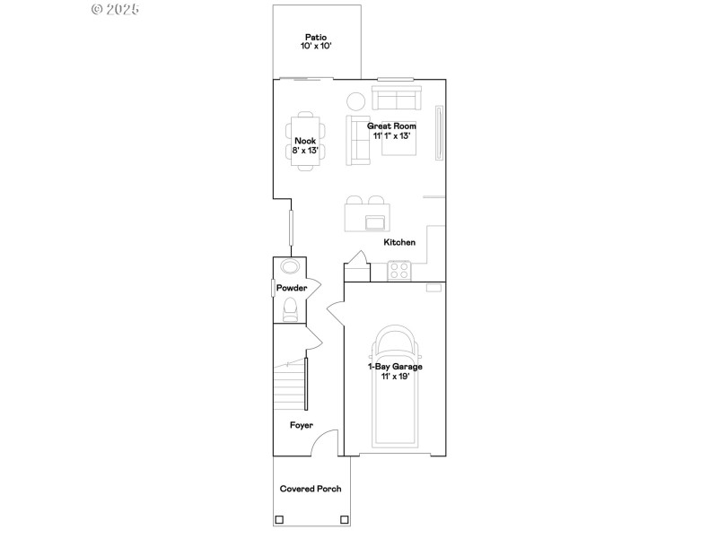
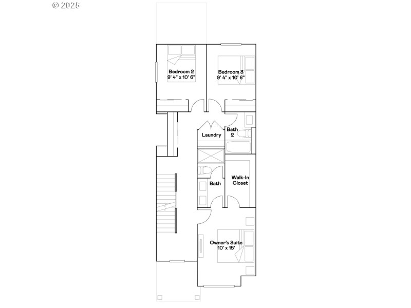
This new construction duplex is part of South River Terrace, a connected community offering excellent schools, freeway access, and proximity to shops, dining, golf, and onsite parks, playgrounds, and sport courts. The plan features a low-maintenance layout with the kitchen flowing into the great room and dining area, plus sliding doors to a patio that extends living outdoors to the fenced and landscaped yard. Upstairs are three bedrooms, including a spacious primary suite with a private bath and walk-in closet, while the top floor includes a versatile bonus room ideal for a media room, office, or play area. Interior finishes include quartz countertops, LVP flooring, and modern details throughout. This home also includes central air conditioning, a refrigerator, washer and dryer, and blinds—all at no extra cost! Located on homesite 9, this home is expected to be complete in April 2026. Rendering is artist conception only. Photos are of a similar home, features and finishes will vary. Below-market rate incentives are available when financing with our preferred lender.
Take Ext 4B off OR-217, W on SW Scholls Ferry Rd to SW 165th Ave to Lennar Homes.
Dwelling Type: Residential
Subdivision: N/A
Year Built: 2025, County: US
Take Ext 4B off OR-217, W on SW Scholls Ferry Rd to SW 165th Ave to Lennar Homes.
Listing is courtesy of Lennar Sales Corp
Sign in to your account to continue