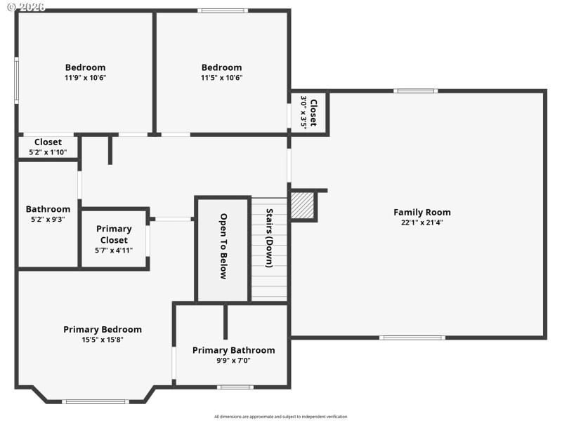
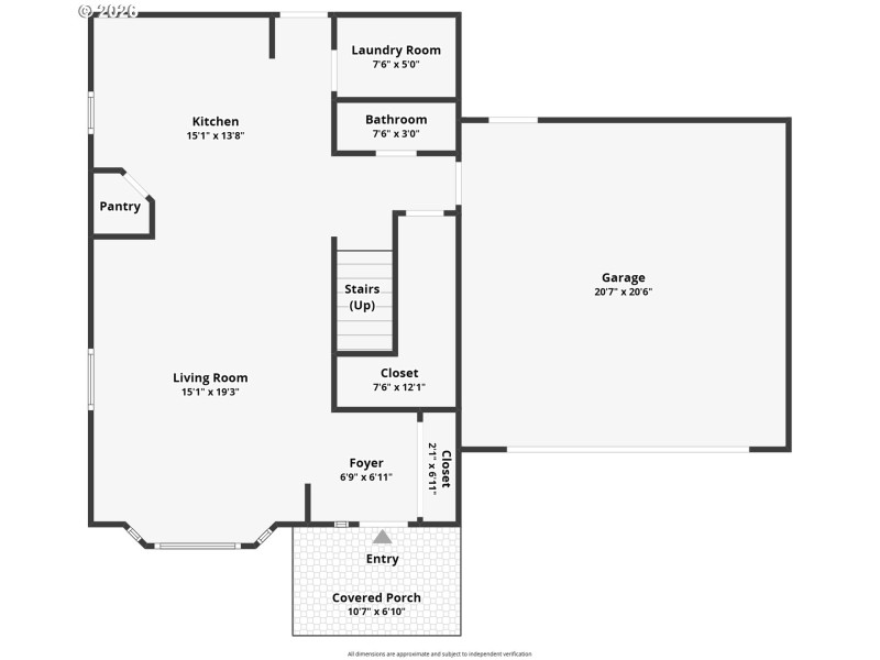
Move-in-ready, well-maintained home with spacious and functional living areas. This 2011 stick-built home features an open-concept main floor with a large living and dining area, laminate flooring, and a kitchen designed for everyday living and entertaining. The kitchen offers bar stool seating, Formica countertops, a pantry, hickory cabinets, and appliances are included. A convenient laundry room and half bath are also located on the main level.Upstairs, you will find a second generous living space, three bedrooms, and two full bathrooms. The primary suite includes wood flooring, a walk-in closet, a granite countertop vanity, and a walk-in shower.The home is equipped with a 2018 ducted heat pump for efficient heating and cooling throughout. An attached 484 sq ft garage provides additional storage and convenience.Outside, enjoy a deck with pergola, a fully fenced backyard with garden shed, and fresh sod installed in 2025. The covered front deck features a stamped concrete entry, adding to the home’s curb appeal.
Nugget to Elkview
Dwelling Type: Residential
Subdivision: N/A
Year Built: 2011, County: US
Nugget to Elkview
Listing is courtesy of Madden Realty
Sign in to your account to continue