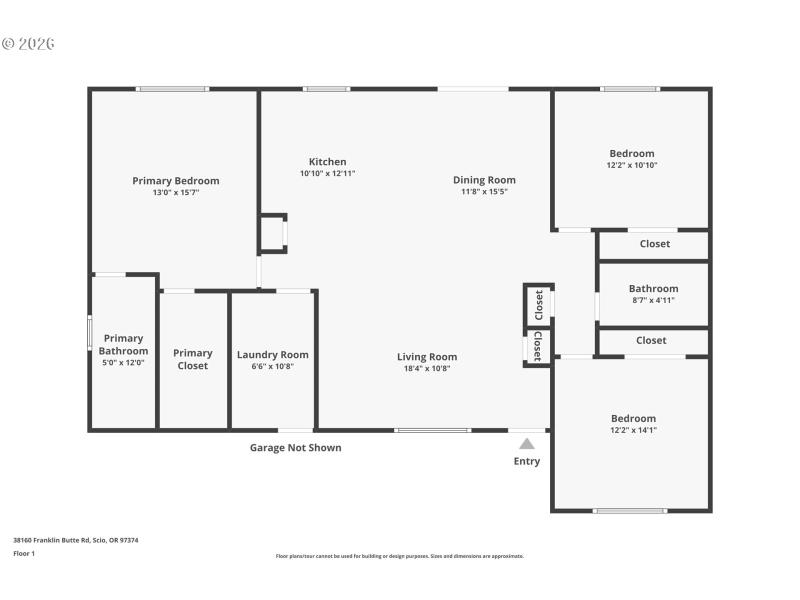
Built in 2018, this well maintained 3 bedroom, 2 bathroom home sits on just over 2 acres in a quiet, private setting surrounded by mature trees. The property offers a peaceful, secluded feel while still being just 7 minutes from the town of Scio.Inside, the home features a functional open layout with vaulted ceilings in the main living space, creating a bright and spacious feel. The kitchen includes a central island that adds prep space and makes everyday living easy. The fully insulated garage adds year round usability, and the home is wired for a backup generator for added peace of mind. A 400 amp electrical service provides ample capacity for future needs or additional improvements. If you are looking for a newer home with space, privacy, and convenient access to town, this property checks all the right boxes.
turn from Franklin butte rd right at the sharp corner then head to the top of the hill
Dwelling Type: Residential
Subdivision: N/A
Year Built: 2018, County: US
turn from Franklin butte rd right at the sharp corner then head to the top of the hill
Listing is courtesy of Real Broker
Sign in to your account to continue