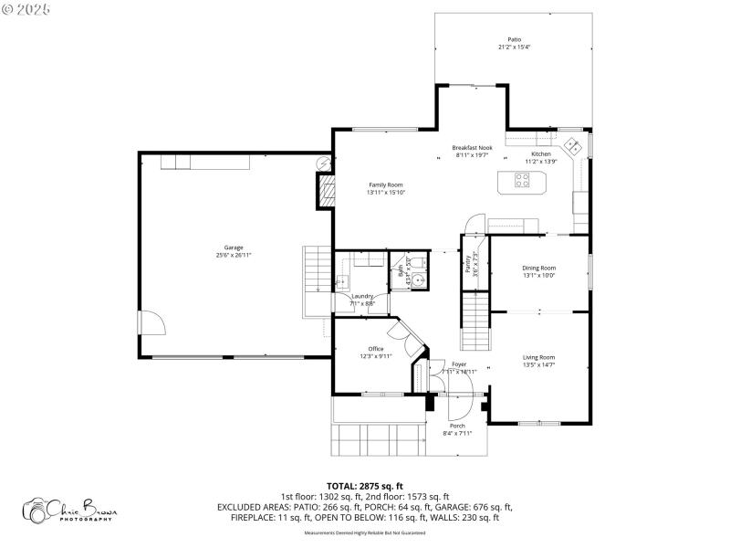
This spacious 2,988 sq ft home sits on a quiet cul-de-sac in the Hunters Highland neighborhood and offers an excellent layout with plenty of room to grow. On the main level you’ll find a formal living room and a separate family room with a fireplace, as well as a formal dining room and a home office with French doors. The kitchen features a cook island, stainless steel appliances, a pantry, and a breakfast nook with a slider to the backyard.Upstairs, the primary suite offers vaulted ceilings, a large closet, and an ensuite bathroom with double sinks, a walk-in shower, and a jetted tub. Three additional bedrooms, a full bath with double sinks, and an impressively large bonus room provide room to spread out, gather, or design a space that fits your lifestyle—media room, playroom, gym, or more. The fully fenced backyard and patio are ready for your ideas and outdoor use. The oversized garage offers plenty of extra space and built-in shelving for tools, storage, and gear. This home is being sold in as-is condition. It will need updates throughout, but with its size, layout, and location, it has solid potential for a buyer ready to refresh, update, and make it their own.
S Highland Dr, R on 23rd Dr, L on Brittany Dr, L on Phyllis Dr, L on 30th Dr, R on 30 Ct.
Dwelling Type: Residential
Subdivision: N/A
Year Built: 1998, County: US
S Highland Dr, R on 23rd Dr, L on Brittany Dr, L on Phyllis Dr, L on 30th Dr, R on 30 Ct.
Listing is courtesy of Bissell Homes
Sign in to your account to continue