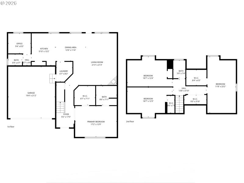
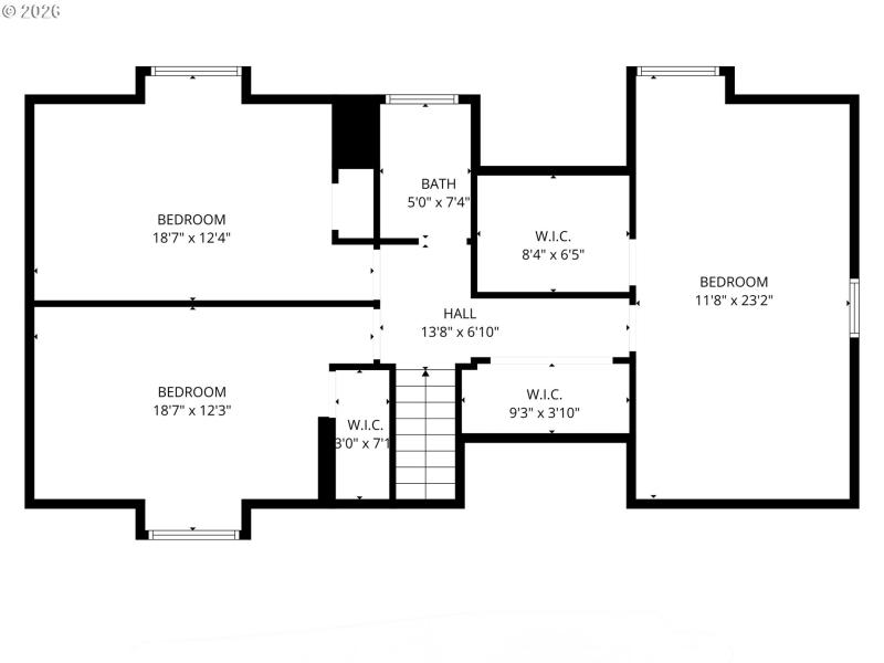
Well-designed modern home home w/ new roof, 4 bedrooms + office & 2.5 baths w/ a desirable 18x13 main-level primary suite featuring walk-in closet + bath w/ double sinks. Open floor plan includes a spacious living room w/ gas fireplace & a large kitchen w/ abundant storage. Dual laundry rooms upstairs & down add convenience. Fenced backyard w/ patio provides low-maintenance outdoor space featuring custom-concrete fireplace w/ built-in seating—great for relaxing or entertaining. Close to parks, shopping & downtown.
272 Laurine St NE
Dwelling Type: Residential
Subdivision: N/A
Year Built: 2006, County: US
272 Laurine St NE
Listing is courtesy of HomeSmart Realty Group
Sign in to your account to continue