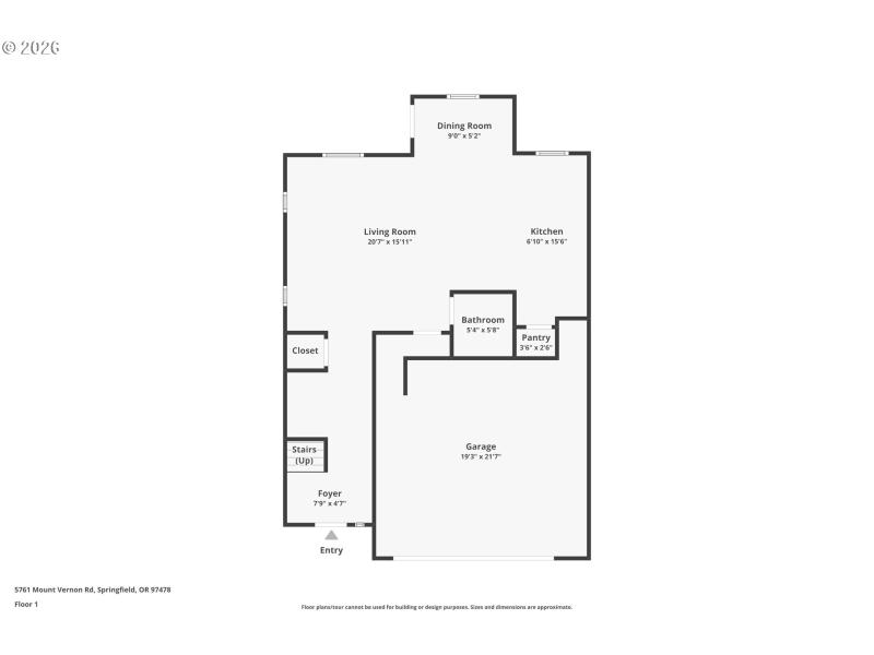
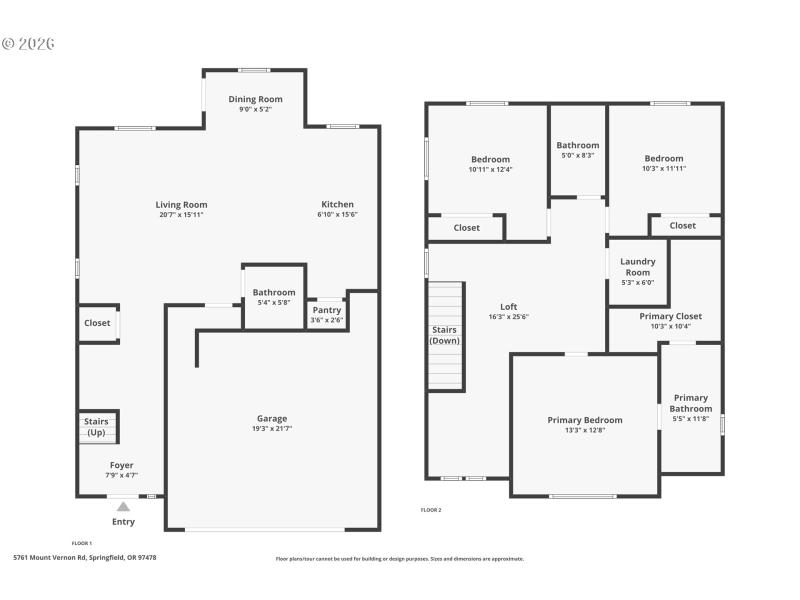
Move-in ready, low-maintenance Craftsman in sought-after Thurston! The open-concept main level features spacious living and dining areas flowing into a light-filled kitchen with pantry. Upstairs, the primary suite includes a walk-in closet and dual-sink bath, plus 2 add’l bedrooms, a loft, office/den nook, laundry room, and guest bath. Outdoor living shines with a covered deck, patio & hardscape sitting area, while the 2-car garage offers overhead storage. Recent updates: new AC (2020) & exterior paint (2021). Conveniently close to trails, schools, shopping & more!.... This home qualifies for a 5.125% introductory interest rate with preferred lender pricing. Ask your agent for more info.
S on Bob Straub; Rt on Mt Vernon; Left into Jasper Meadows across from S 57th Pl; Left to home
Dwelling Type: Residential
Subdivision: N/A
Year Built: 2007, County: US
S on Bob Straub; Rt on Mt Vernon; Left into Jasper Meadows across from S 57th Pl; Left to home
Listing is courtesy of DC Real Estate Inc
Sign in to your account to continue