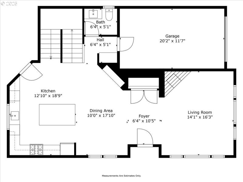
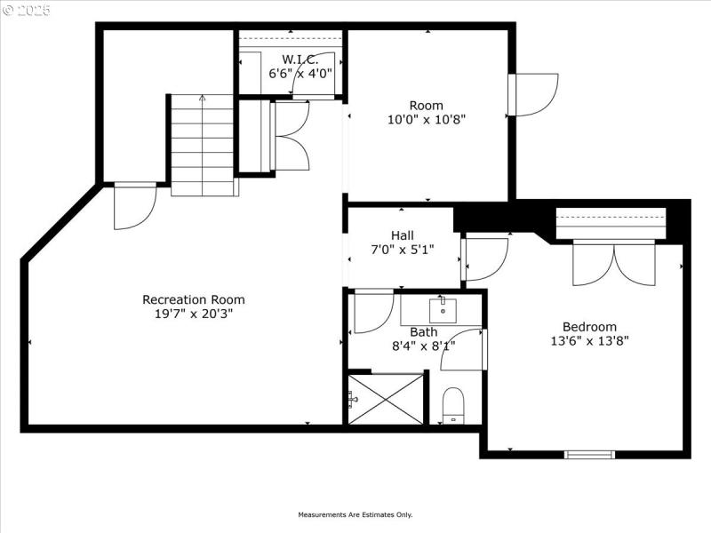
Special financing available! Jumbo Loan options with a complimentary 1-Year Rate Buydown and a lender credit toward your rate buydown. Hallinan has another Monogrammed home! Situated on a premiere lot, this contemporary home offers everything you would expect from a Monogram build including a custom steel pivot front door, smooth interior walls, and back yard covered patio with heater. Super functional floor plan with 3 bedrooms up, and another with full bath on the lower level. Greatroom opens to a lux kitchen with Wolf and Subzero appliances. Divine primary suite with free standing tub and large tiled shower. Monogrammed to perfection, buyers will love all the features this new build has to offer. Convenient location . Stroll to downtown Lake Oswegos restaurants, farmers market and wonderful amenities.
Hwy 43 to Laurel, right on Lund
Dwelling Type: Residential
Subdivision: N/A
Year Built: 2025, County: US
Hwy 43 to Laurel, right on Lund
Listing is courtesy of Premiere Property Group, LLC
Sign in to your account to continue