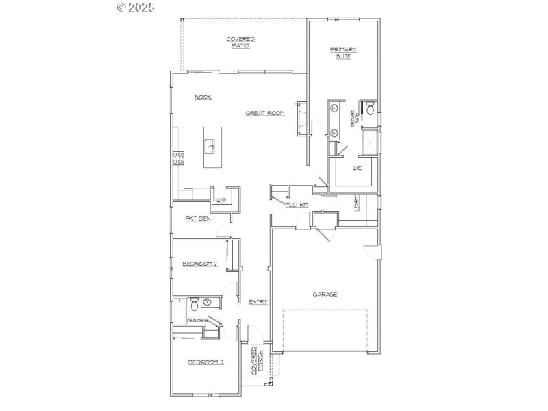
The last remaining Laurel floor plan, this cute, white, 1 level farmhouse style home will be ready in March. This home has a generous sized entry leading into the open great room area with 11 foot ceilings. Great kitchen with large pantry, gas stove, large island, quartz counters and soft close doors. The large private covered patio is perfect for entertaining and includes back yard sod and sprinklers. 3 bedrooms plus a den/flex room. HOA includes neighborhood park, pool and clubhouse and front yard maintenance! Incentive available. Southwest Washington is known for its abundance of nature with plenty of nearby trails, parks, and the River for boating and fishing. Ridgefield is only a 20-minute drive to the Portland metro which gives residents access to all the amenities of a large metro area while enjoying the small town life. Living in this community will allow you to admire the beauty of Southwest Washington while enjoying the luxury of a Pahlisch home.
From NW Hillhurst Road, E on S 36th Drive, Right on ArwanaLane
Dwelling Type: Residential
Subdivision: SANDERLING PARK
Year Built: 2025, County: US
From NW Hillhurst Road, E on S 36th Drive, Right on ArwanaLane
Listing is courtesy of Pahlisch Real Estate Inc
Sign in to your account to continue