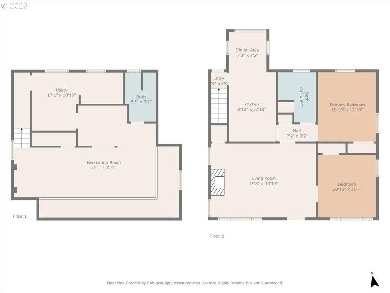
This neo-classical Portland bungalow offers a rare combination of historic charm and zoning flexibility and is located in one of Portland’s most dynamic neighborhoods. Whether you envision a residential opportunity, a small business, or a mixed-use development, the possibilities are endless. This Creston-Kenilworth cutie is ready for your personal touches with potential for a unit or ADU in the finished basement. The main floor has two ample bedrooms with hardwood floors and lots of natural light, a bathroom with a huge linen closet, the kitchen has a bright eating nook and lots of cabinets for storing all your gourmet treats and cooking gadgets and the living room is about as classic as it gets complete with picture rail, fireplace and even a coat closet, a rare find in these 1928 bungalows! In the basement we've got another bathroom and so much potential for another unit with a separate entrance, bathroom, bonus room and plumbing stubbed out for the wet bar. This property is complete with a long driveway for plenty of off-street parking, garage and a sizeable backyard for your gardening dreams and hanging with friends & family. With it's long-term potential value, flexible CM2 commercial zoning for; retail, office, personal services, live/work space, possible mixed-use development or building additional units for residential or commercial use, this property is perfect for investors, developers, or those seeking to purchase a home sweet home in a thriving neighborhood. Walk Score 93, Bike Score 99 [Home Energy Score = 4. HES Report at https://rpt.greenbuildingregistry.com/hes/OR10241174]
From 52nd, West on SE Bush St
Dwelling Type: Residential
Subdivision: CRESTON - KENILWORTH
Year Built: 1928, County: US
From 52nd, West on SE Bush St
Listing is courtesy of Proud Realty LLC
Sign in to your account to continue