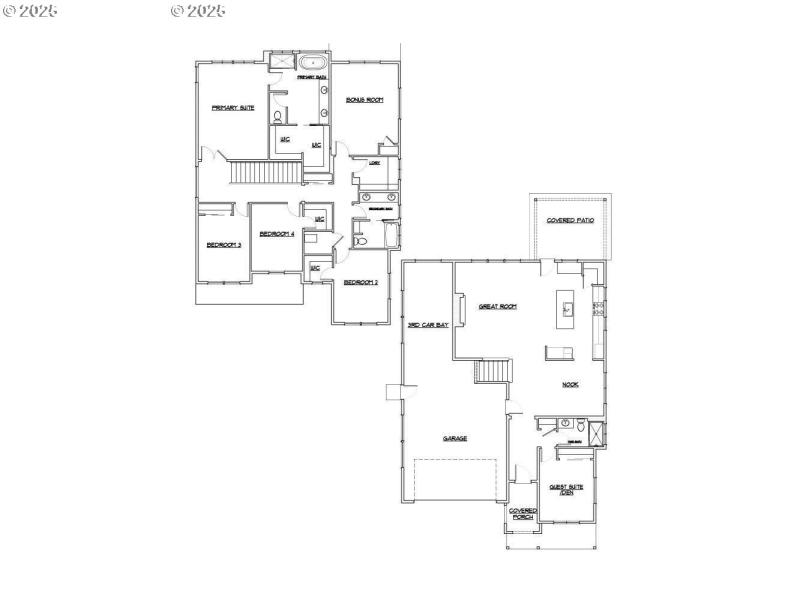
Discover an exquisite 5BR, 3BA home in the esteemed Butternut Creek area of Reeds Crossing. This stunning 2957 sq. ft. sanctuary by Pahlisch Homes features a well-thought-out design, perfect for flexibility and comfort. The main level includes a full bedroom and bath with a walk-in shower, ideal for guests or multi-generational living. Luxury Vinyl Plank flooring flows throughout, gourmet kitchen with walk-in pantry, quartz counters and high-end stainless appliances providing a stylish yet durable surface. The family room invites warmth with built-in features, harmonizing aesthetics and functionality. An open floor plan with high ceilings seamlessly connects living spaces, enhancing natural light and sociability. Venture upstairs to find a generous bonus room, ready to be tailored to your needs, whether as a home office, gym, or playroom. Enjoy the outdoors year-round with a covered patio, and benefit from an oversized 3-car garage, perfect for storage or your next project. Living in Reeds Crossing means access to the new Tamarack Elementary, scenic parks, playgrounds, dog park, splash pad and ample walking paths. The surrounding area offers the convenience of a shopping center with Market of Choice, restaurants, boutiques, and medical offices, plus community events like Saturday Morning Yoga in the Park. [Home Energy Score = 9. HES Report at https://rpt.greenbuildingregistry.com/hes/OR10225293]
SE Cornelius Pass Rd. West on SE Butternut Creek. South on SE 74th. West on SE Benedict Ave.
Dwelling Type: Residential
Subdivision: N/A
Year Built: 2024, County: US
SE Cornelius Pass Rd. West on SE Butternut Creek. South on SE 74th. West on SE Benedict Ave.
Listing is courtesy of John L. Scott Market Center
Sign in to your account to continue