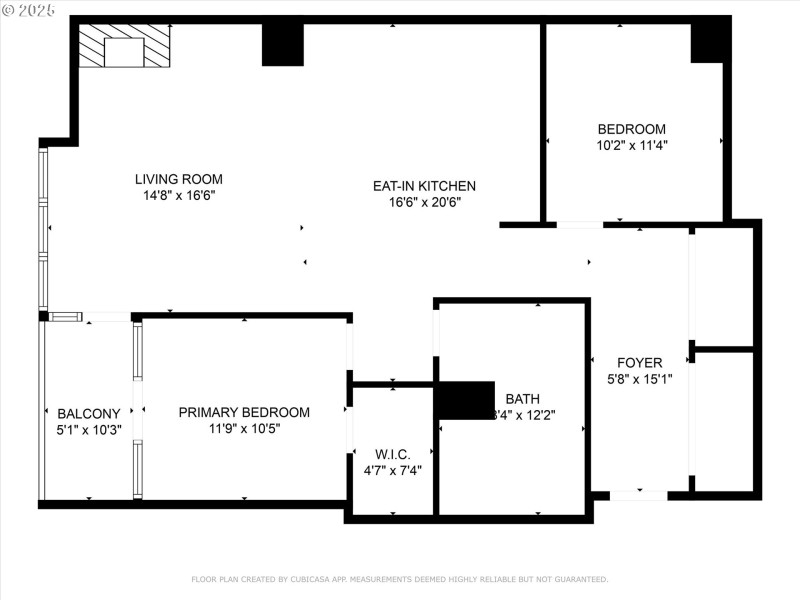
Experience elevated living at the Vancouver Waterfront in the prestigious Kirkland Tower. Unit 700 offers a rare opportunity to own a one-bedroom plus den, one-bath residence that lives like a two-bedroom home, blending modern design with resort-style amenities. Located on the highest floor available for this plan, this home combines sophistication, privacy, and breathtaking west-facing city and sunset views through expansive floor-to-ceiling windows that flood the space with natural light. The open-concept, eat-in kitchen features premium Miele appliances, sleek modern cabinetry, quartz countertops, and a vented range hood, flowing seamlessly into the living area for effortless entertaining. Wide-plank European-engineered hardwood floors, independent HVAC, and thoughtful design enhance every detail. The primary suite includes a spa-inspired bath with high-end finishes, generous closet space, and a bidet, while the versatile den offers flexibility for a guest room, office, or media space.Residents enjoy exclusive access to a rooftop sky lounge and terrace with fire features, state-of-the-art fitness center, resident clubroom, concierge service, and secure package room—all with direct connection to Hotel Indigo. Attached services include Amelie Med Spa, El Gaucho, The Witness Tree rooftop bar and lounge, 13 Coins, 13 Coins Coffee House, and Evoke Winery, plus room service and valet. Immediate occupancy is available, and a property tax abatement remains active through 2031. Just steps from Vancouver Waterfront Park, dining, and boutique shopping, Unit 700 offers an unmatched blend of comfort, service, and luxury. Schedule your private tour today and discover why Kirkland Tower defines modern waterfront living.
Esther St and Waterfront Way
Dwelling Type: Residential
Subdivision: KIRKLAND TOWER/WATERFRONT
Year Built: 2019, County: US
Esther St and Waterfront Way
Listing is courtesy of Cascade Hasson Sotheby's International Realty
Sign in to your account to continue