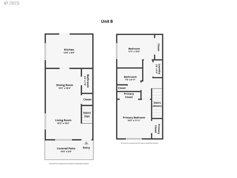
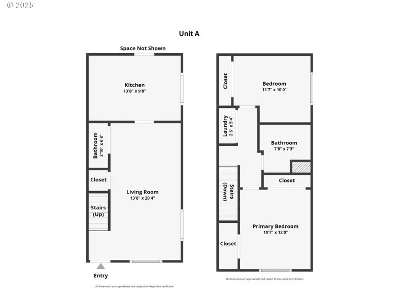
A rare chance to secure a well-kept triplex in the heart of Laurelhurst. Two townhouse-style units sit at the front of the property, while the rear unit offers convenient single-level living with its own private deck. One unit is currently vacant, giving a buyer the option to live on-site and reduce ownership costs or lease it out to maximize returns. Each unit includes dedicated covered parking beneath the building, providing dependable off-street space. The exterior was repainted in 2021 and the interiors have been refreshed with updated finishes. New roof in 2023. All appliances stay, including washers and dryers. Durable wood-style flooring adds a clean, modern feel throughout. The location is hard to beat, with popular dining, shopping, and daily conveniences just steps away. Walk Score 97, Bike Score 100.
Burnside between NE 24th & NE 26th Ave
Dwelling Type: MultiFamily
Subdivision: LAURELHURST
Year Built: 2004, County: US
Burnside between NE 24th & NE 26th Ave
Listing is courtesy of Northwest Realty Source
Sign in to your account to continue