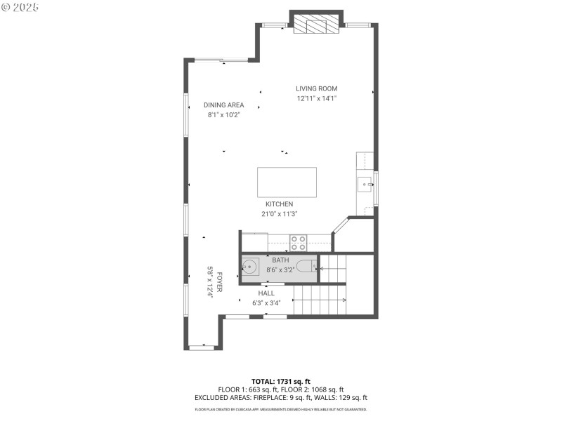
Better Than New Construction and Just in Time for the Holidays!Why wait months and pay builder premiums when you can celebrate the season in this lightly lived in 2023 home in the desirable North Haven community? Move in before the holidays and enjoy all the perks of new construction without escalation costs, upgrade fees, or delays. With comparable new-builds priced higher, this home offers exceptional value wrapped up like the perfect holiday gift. This modern corner-lot home features an open-concept great room ideal for cozy winter gatherings along with a quartz kitchen with island, stainless appliances, and wide-plank flooring. Upstairs, you’ll find a spacious primary suite with walk-in closet, two additional bedrooms, and a convenient laundry room, creating the perfect backdrop for holiday mornings. Nearly new systems throughout, including a heat pump + A/C and smart-home features, ensure comfort all season long. The fenced yard and newly added deck make hosting festive celebrations effortless. Located in the Ridgefield School District with easy access to I-5, shopping, and nearby parks. Skip the wait, skip the premiums, and unwrap a home just in time for the holidays! Seller is offering buyer concessions, it's a gift all Wrapped in a New Home Purchase,
Exit 9 from I5, R on NE 179th St, L on NW 11th, L on NW 175th Way
Dwelling Type: Residential
Subdivision: NORTH HAVEN
Year Built: 2023, County: US
Exit 9 from I5, R on NE 179th St, L on NW 11th, L on NW 175th Way
Listing is courtesy of Windermere Northwest Living
Sign in to your account to continue