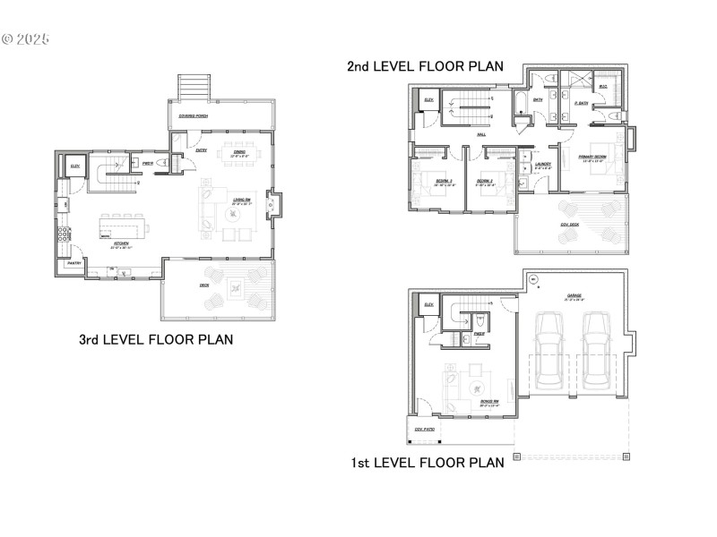
Perched high in the coveted Depoe Hills community, Lot 2 is a premier homesite which offers panoramic ocean views where glowing sunsets and migrating whales become part of daily life. The sale includes preliminarily approved plans for a refined three-bedroom home which was designed to capture the sweeping views. Depoe Hills is a serene enclave showcasing modern coastal architecture while maintaining a timeless charm and is just moments from Depoe Bay’s harbor, boutique shops, and acclaimed dining. This is a rare opportunity to build your dream home in a setting defined by natural beauty and an inviting small-town spirit.
Turn East off of HWY 101 onto Lillian Lane
Dwelling Type: Land
Subdivision: DEPOE HILLS
Year Built: N/A, County: US
Turn East off of HWY 101 onto Lillian Lane
Listing is courtesy of Cascade Hasson Sotheby's International Realty
Sign in to your account to continue