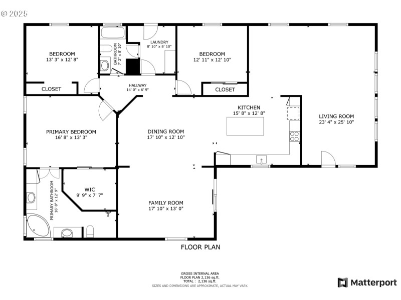
Spacious, open, & bright triple wide manufactured home situated on almost five acres of flat & gently sloped land with your personal creek running through it in charming Carson Washington, just down the road from scenic Stevenson, home of the beloved Skamania Lodge! This lovely open concept home features vaulted & high ceilings, extra windows & large rooms including a primary suite, making single level living sweet on your personal piece of nature. Outside you'll find a covered car port, a chicken coop, a second outbuilding, an animal pen, fenced areas for livestock, two large storage containers, & a finished shed ready for your personal use! Whether fishing, camping, hiking, or just enjoying coffee or a local brew in town come, bring your RV, toys, or livestock & live the comfortable life today! Zoned R-2. Dividable! Buyer to do due diligence. Emergency generator stays.
Wind River Hwy to Hemlock Rd
Dwelling Type: Residential
Subdivision: N/A
Year Built: 1998, County: US
Wind River Hwy to Hemlock Rd
Listing is courtesy of Redfin