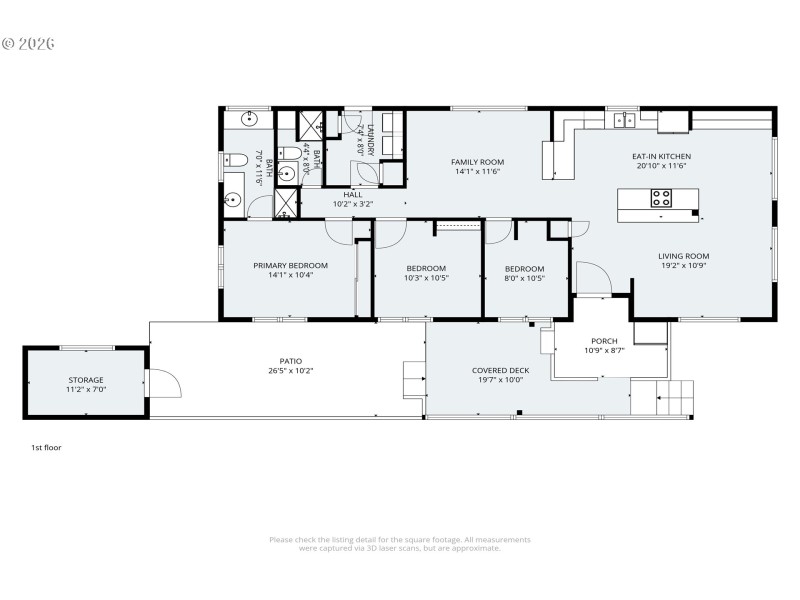
No expense was spared and no detail overlooked in this charming, cozy, and lovingly remodeled double-wide manufactured home located in a welcoming 55+ community. This warm and inviting 3-bedroom, 2-bathroom home has been thoughtfully updated with a new mini-split system for efficient heating and cooling, new luxury vinyl plank flooring throughout, fully updated with PEX plumbing, new insulation beneath the home, and new gutters for added peace of mind.Soft natural light pours in through the south-facing front windows, creating a bright yet comfortable atmosphere in the kitchen and living areas. Throughout the home, hand-painted tongue-and-groove and shiplap walls add character, texture, and a truly cozy feeling, complementing the upgraded LED lighting. The layout offers both a relaxed living room and a warm family room—perfect for quiet mornings or hosting friends. The open kitchen is bright and welcoming, featuring ample counter space and an eat-in counter ideal for casual meals and conversation.The spacious primary bedroom serves as a peaceful retreat and includes an attached bathroom with dual vanities, offering comfort and convenience. Two additional bedrooms and a second full bathroom provide flexible space for guests, hobbies, or a home office.Step outside to enjoy the private covered deck, a fenced area for dogs, and a sweet grassy space perfect for relaxing outdoors. A large Tuff Shed for tools and storage is included, along with the added bonus of a second on-site parking space. This well cared for, move-in-ready home offers comfort, charm, and easy living. Shown by appointment only.
HWY 101 to 37th
Dwelling Type: Residential
Subdivision: N/A
Year Built: 1979, County: US
HWY 101 to 37th
Listing is courtesy of Fathom Realty Oregon, LLC
Sign in to your account to continue