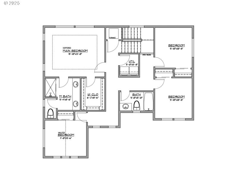
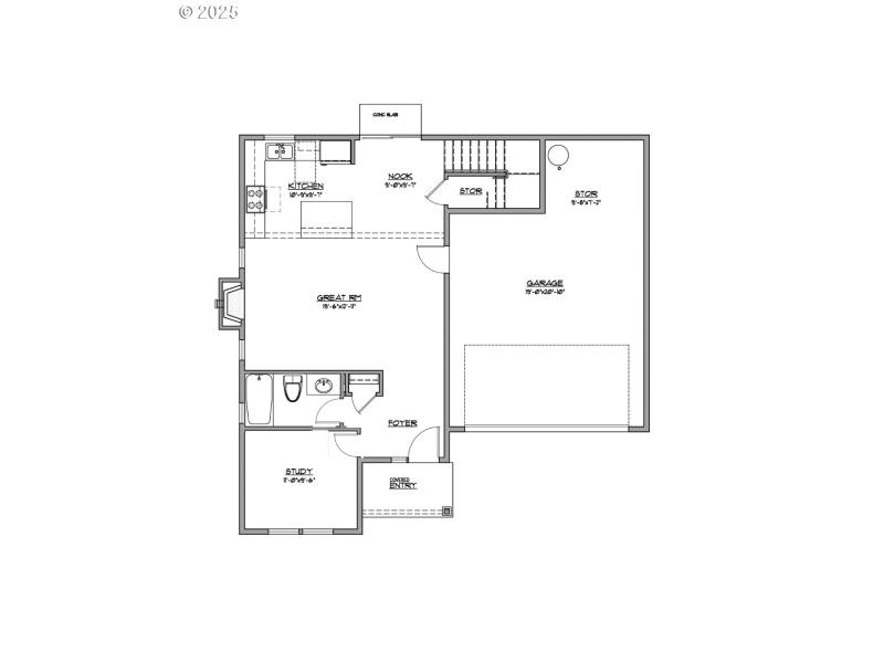
Stunning solid wood entry door- Open concept plan with exceptional finishes throughout including 9' ceilings & luxury vinyl flooring on entire main level. Kitchen designed with modern style custom built cabinetry, full tile backsplash, Quartz counters, island with overhang for bar stools. Beautiful custom lighting, SS Appliances including gas range. Standard amenities include 95% efficient forced air heat, gas fireplace with tile surround. Upgraded trim throughout. Main level has den/ office that could be converted to 5th bedroom - right next to the main level full bathroom with walk in shower. Upper level Primary bedroom has tray ceiling, in-suite bathroom with custom tile shower, glass door, quartz counters, double sinks, walk-in closet with custom organization system. Fenced back yard, front yard is landscaped. Wonderful neighborhood, easy commute and NO HOA FEE! Move in ready New construction in desirable Newberg location brought to you by West One Homes Inc.
99w > S on Springbrook Rd > Left on Province Ct
Dwelling Type: Residential
Subdivision: Edgewater
Year Built: 2025, County: US
99w > S on Springbrook Rd > Left on Province Ct
Listing is courtesy of Bella Casa Real Estate Group
Sign in to your account to continue