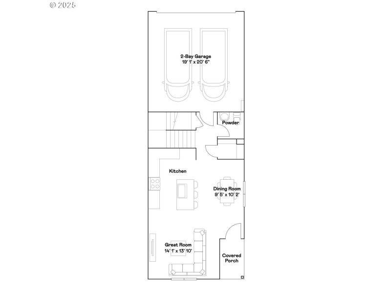
Whitney Farmhouse under construction has it all! Excellent great room plan featuring 3 bedrooms and upstairs flexible loft space! Everything's Included: Fencing, sprinklers, landscape, central air conditioning, refrigerator, washer and dryer, white window blinds and so much more. Amazing outdoor amenities like greenspace, picnic areas, futsal court, and dog park. Come see Smith Creek today. Lots of floor plans for your consideration. Open daily for tours by appointment! Call and set up your visit today.
East from freeway, R on Evergreen, L on Harvard. Harvard to Stubb, L on Gunderson.
Dwelling Type: Residential
Subdivision: SMITH CREEK
Year Built: 2025, County: US
East from freeway, R on Evergreen, L on Harvard. Harvard to Stubb, L on Gunderson.
Listing is courtesy of Lennar Sales Corp
Sign in to your account to continue