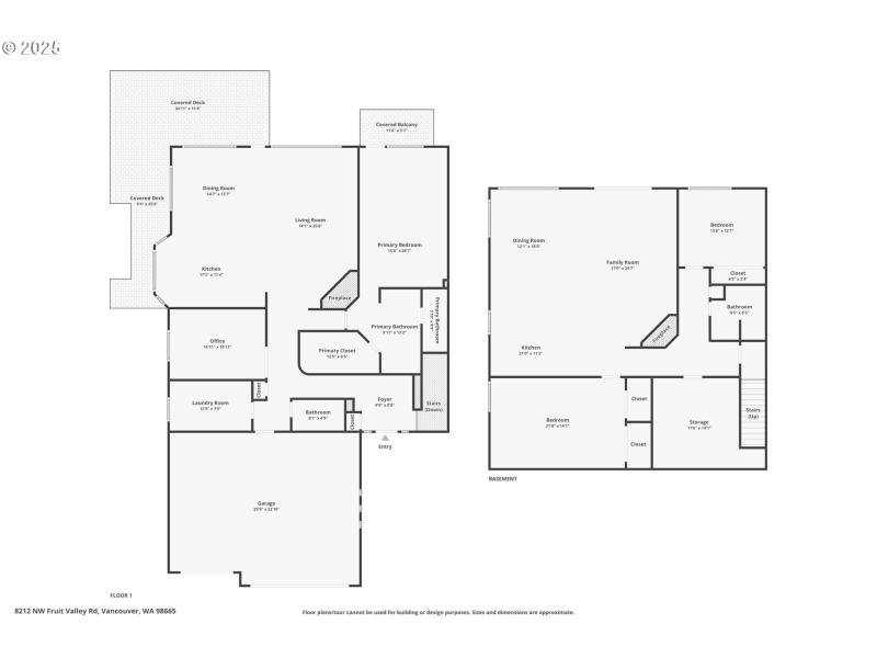
Two living spaces in one — a rare opportunity in gated Lakeshore. Ideal for multi-generational living or simply enjoying exceptional space and flexibility, this beautifully maintained builder’s home offers a full residence on each level, each with its own entry, kitchen, living room with gas fireplace, dining area, and private patio with peaceful Vancouver Lake views.The HOA covers shared resources including irrigation water (sprinkler system only), exterior maintenance, landscaping, perimeter lighting along the brick fence, gate security, and full building insurance, allowing for easy, lock-and-leave living. Homeowners only need individual furnishings coverage.Upstairs features soaring 10’ and 9’ ceilings, refinished cherry hardwood floors, newer interior paint and carpet, granite countertops, Hunter Douglas window treatments, custom drapery, and an automated sun shade in the living room. The remodeled primary suite includes blackout shades, a double vanity, soaking tub, walk-in closet with built-ins, updated wall with sound-deadening, and a newer glass shower door. Newer HVAC systems (up and down) and a 2020 hot water heater add peace of mind. Additional features include newer appliances, real wood built-ins, widened roof valleys, newer gutters with leaf guard, and a full main-level laundry room with sink and storage cabinetry.The lower level offers 8.5’ ceilings, a full kitchen, large living and dining areas, two bedrooms, an updated bathroom with new walk-in shower, dedicated storage and mechanical room, and a private exterior entrance—perfect for guests or extended living arrangements. The three-car garage completes this exceptional property. Top-rated schools and a location hard to beat!
W on 78th, N on NW Fruit Valley Road
Dwelling Type: Residential
Subdivision: Lake Crest Estates
Year Built: 1990, County: US
W on 78th, N on NW Fruit Valley Road
Listing is courtesy of Windermere Northwest Living
Sign in to your account to continue