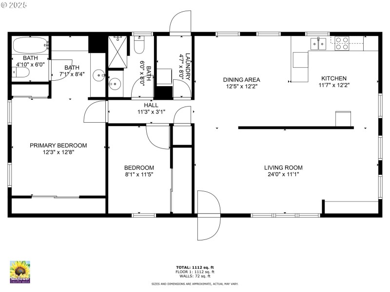
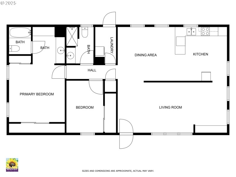
Discover a charming 2 bed, 2 bath home in vibrant Vancouver, WA. Spanning 1,152 sq ft, this cozy manufactured home is updated with modern LVP flooring and fresh paint throughout. The kitchen delights with an updated design, tile backsplash, and a new dishwasher. Enjoy comfort year-round with a newer furnace, heat pump, and windows. Outdoors, a large fenced backyard and a covered patio offer private relaxation or entertaining space. Additionally, there's a 16x10 shop for hobbies or storage. With rent at $650 a month, water, sewer, and trash are included, and pets are welcome. This delightful home is situated in a 55+ community with no HOA fees, conveniently close to shopping centers, schools, and major freeways like 205 and I-5. Downtown Vancouver and Vancouver Mall are nearby for added convenience.
East fourth plain blvd and Brandt rd
Dwelling Type: Residential
Subdivision: N/A
Year Built: 1971, County: US
East fourth plain blvd and Brandt rd
Listing is courtesy of Legions Realty