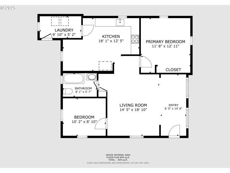
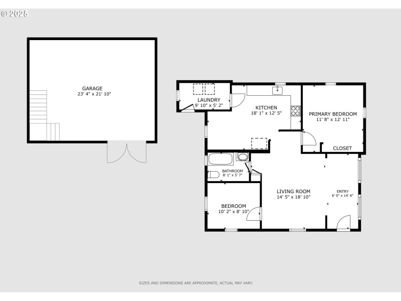
Versatile Residential/Commercial Opportunity on Corner lot in Garibaldi. Unlock the potential of this unique mixed-use property offering both residential comfort and business flexibility. Situated on a prominent corner in garibaldi, this 800 sq ft 2 bed, 1 bath home provides an excellent opportunity for owner-users, investors, or small business operators seeking visibility and convenience. The residence features a functional layout with two bedrooms, a bathroom, and open living area ready for your personal touch or commercial adaptation. The efficient footprint makes it easy to manage or repurpose. Attached to the main home, the property includes two small storage bays, perfect for inventory, equipment, hobbies, or recreational toys. The corner-lot setting offers easy access, exposure, and flexible parking options depending on your use. Whether you're looking to run a home-based business, create a rental home, or secure a property with long-term potential, this versatile space delivers endless possibilities. Seller selling house in as-is condition and will not do any repairs.
Garibaldi, North t S. 9th St. & Garibaldi Ave (Hwy 101)
Dwelling Type: Residential
Subdivision: N/A
Year Built: 1915, County: US
Garibaldi, North t S. 9th St. & Garibaldi Ave (Hwy 101)
Listing is courtesy of Keller Williams Sunset Corridor
Sign in to your account to continue