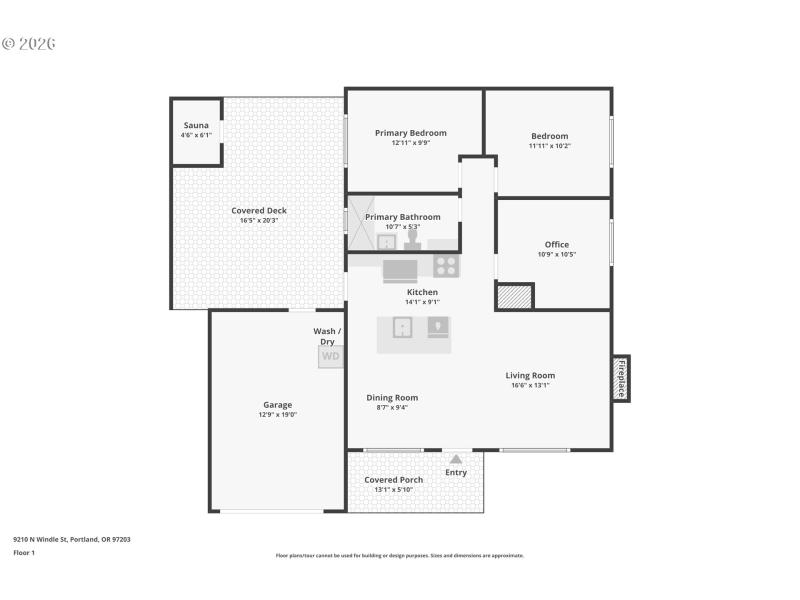
Instant CRUSH!! This Midcentury Ranch in St. Johns delivers style, comfort, and lifestyle! The open floor plan features three nice-sized bedrooms, an updated bathroom with zero threshold shower in custom concrete tile, a gourmet kitchen with marble counters, premium appliances, and a large island. Great room floor plan with custom accent wall including built in bookshelves and Osburn wood stove. Out back to your private covered deck and Finlandia Sauna! Set on a huge lot with a backyard built for entertaining, relaxing, all on a quiet street just three blocks from Pier Park and close to the St. Johns Community Center and iconic Cathedral Park. Minutes to Lombard Street's shops, dining, and neighborhood favorites. Upgraded, move-in ready with a new roof in 2023! Mortgage savings may be available for buyers of this listing. [Home Energy Score = 6. HES Report at https://rpt.greenbuildingregistry.com/hes/OR10218851]
N St Louis to N Windle
Dwelling Type: Residential
Subdivision: SAINT JOHNS
Year Built: 1958, County: US
N St Louis to N Windle
Listing is courtesy of Redfin
Sign in to your account to continue