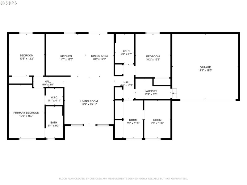
Don't miss this great opportunity to live away from the hustle and bustle, yet 7 min from I-5. This 5+ acre parcel has recent improvement of a 1840 square foot 3-Bay SHOP w/concrete floors (strong enough to install car lift), heated, center RV door, plus 2-bays w/electric openers. Additional 10x40 lean-to for storing wood, tractors etc. The home offer 3bed/2 full baths, den, a mudroom/laundry from attached dbl car garage. Garage has cool epoxy flooring, insulated garage door, NEW whole-house filtrations system AND wired for generator. New luxury vinyl plank floors in neutral color found throughout home. The kitchen will make you go WOW! All new cabinets with tons of options for storing items. Low-cost living - put this one on your list! Back on the market no fault of sellers - buyers backed out prior to inspection.
I-5, Exit 49, East to Spirit Lake Hwy, Left on Shaffran, left Hinch Rd, Right at post w #270 on it.
Dwelling Type: Residential
Subdivision: N/A
Year Built: 2017, County: US
I-5, Exit 49, East to Spirit Lake Hwy, Left on Shaffran, left Hinch Rd, Right at post w #270 on it.
Listing is courtesy of Windermere Northwest Living