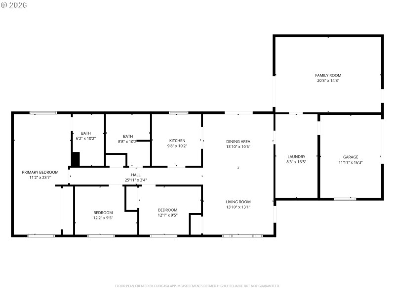
Welcome to this 3-bedroom, 2-bath home nestled in beautiful Dayton OR. With oversized bathrooms and a thoughtful layout, there’s plenty of room for comfortable living and entertaining. Ideally located just steps from the city park and town center, you’ll enjoy the ease of walkable small-town life with the charm of a close-knit community. The family room/bonus room offers many options. Whether you’re looking to settle down or simply escape the hustle and bustle, this home offers the perfect blend of space, simplicity, and small-town serenity.
Head North East on SE Amity Dayton highway, turn left onto Main St
Dwelling Type: Residential
Subdivision: N/A
Year Built: 1972, County: US
Head North East on SE Amity Dayton highway, turn left onto Main St
Listing is courtesy of Keller Williams Realty Mid-Willamette
Sign in to your account to continue