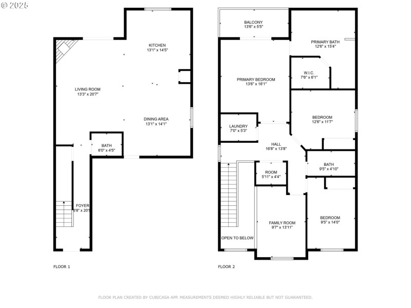
Welcome to this move-in ready craftsman-style home in the desirable Sunset Ridge neighborhood. With thoughtful updates, this 3-bedroom, 2.5-bathroom residence offers 2,096 sq ft of comfortable living space. The main level features an open-concept floor plan with cherry hardwood floors, a gas fireplace, and brand-new stainless steel appliances in the kitchen. Upstairs, you’ll find all bedrooms, a convenient laundry room, and a versatile loft area. The primary suite includes a deck as well as a spacious layout. The fully fenced backyard provides a concrete patio and easy-care landscaping.Community amenities include access to a clubhouse, swimming pool, hot tub, sauna, playground, basketball court, walking trails, and more. Additional highlights include an attached two-car garage, central air, gas heating, and appliances that stay with the home: refrigerator, washer, and dryer.Listing includes a 1-year APHW home warranty, and sellers are motivated to open escrow. Schedule your showing today and discover all that this property and community have to offer. Potted plants are not included.
GPS Friendly
Dwelling Type: Residential
Subdivision: N/A
Year Built: 2004, County: US
GPS Friendly
Listing is courtesy of Premiere Property Group, LLC