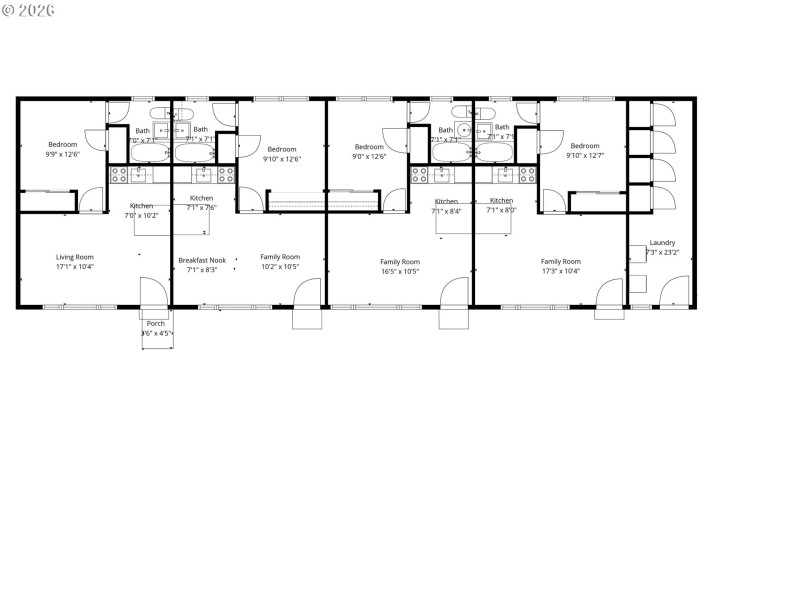
Well-maintained 4-plex featuring four 1-bedroom, 1-bath units, each on a single level for easy living. Units are in good to great condition, with several recently updated, offering a blend of modern improvements and stable tenancy. Property amenities include on-site laundry and tenant storage lockers. Additional value-add potential through future updates and rental upside. Conveniently located near SE Foster with excellent access to public transit, shopping, dining, and everyday services. A solid investment opportunity in a well-connected Southeast Portland location.
Foster Rd., N. on 56th, E on Center
Dwelling Type: MultiFamily
Subdivision: N/A
Year Built: 1962, County: US
Foster Rd., N. on 56th, E on Center
Listing is courtesy of John L. Scott
Sign in to your account to continue