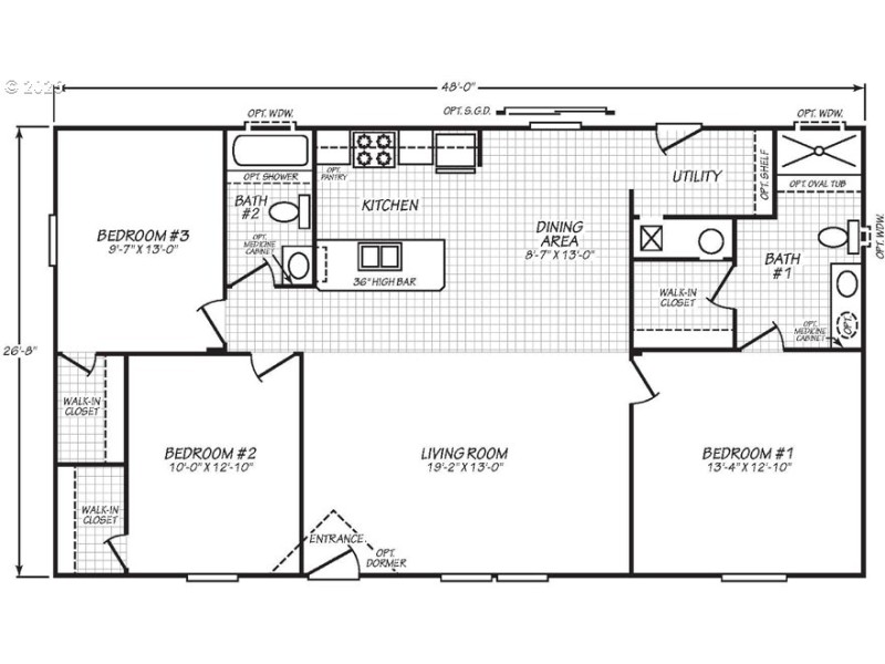
New 2025 manufactured home with ample parking, including a spot to park large vehicles and RVs. This floor plan features an open kitchen design with solid-surface countertops and new appliances. The primary suite is very spacious, with a jack-and-jill bathroom and a large walk-in closet. The open concept is great for entertaining and large families. The property has a yard space, can park several vehicles, and a carport will be built prior to closing.
Located on Walnut Ave
Dwelling Type: Residential
Subdivision: N/A
Year Built: 2025, County: US
Located on Walnut Ave
Listing is courtesy of Willcuts Company Real Estate
Sign in to your account to continue