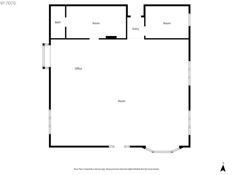
Distinctive 1,925 sq ft commercial property has pride of place in historic downtown Cottage Grove, Oregon. Formerly a Bank of America branch, this stand-alone building boasts classic brick-and-column architecture that exudes professionalism as well as attractive curb appeal—perfect for retail, office, financial services, or professional use. Key features include: Spacious open interior with existing teller stations and vault (ideal for secure operations). Back room equipped with cabinets & small sink—ideal for a break room, office, kitchenette, or storage. Ample on-site parking and excellent street frontage for maximum visibility. Prominent corner location with great signage opportunities. Former bank drive through window, currently non-operational. Positioned in the heart of Cottage Grove, which is known for its timeless charm, covered bridges, and easy access to I-5, this property offers unparalleled exposure in a growing & revitalizing area just south of Eugene. Don't miss this rare chance to establish or expand your business in a prime spot. OPEN HOUSE - 01/24/26 12:00 pm - 2:00 pm
West on Main St, property is on right.
Dwelling Type: CommercialSale
Subdivision: N/A
Year Built: 1979, County: US
West on Main St, property is on right.
Listing is courtesy of Hybrid Real Estate
Sign in to your account to continue