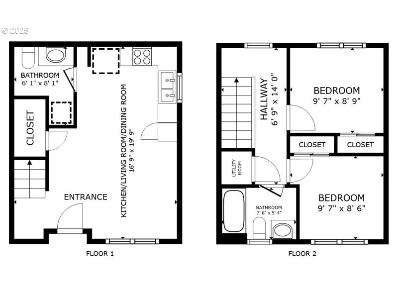
Live smart and live beautifully at Bonita Cottages, designed for low-maintenance living without sacrificing comfort or style. The Sage is the only home of its kind in this boutique new-construction community, a detached 2-bedroom plan offering elevated privacy with no neighboring home on one side and convenient access to its deeded parking space. A modern alternative to condo living, it provides the freedom of a standalone home without shared walls. The bright, open-concept main level features luxury vinyl plank flooring, quartz countertops, stainless steel appliances and painted custom cabinetry. Upstairs, two bedrooms and a full bath offer comfortable retreat and flexible function for work, guests or personal space. Energy-efficient mini-split heating and cooling, durable finishes and quality craftsmanship create a low-maintenance living experience. Located moments from parks, trails, Trader Joe’s, I-5, 99W, Hwy 217 and everyday conveniences. HOA covers common area maintenance. Six homes available across three floor plans; the Sage is the only one of its kind.
Kruse Way to Bangy Road to Bonita Road
Dwelling Type: Residential
Subdivision: BONITA COTTAGES
Year Built: 2025, County: US
Kruse Way to Bangy Road to Bonita Road
Listing is courtesy of Keller Williams Sunset Corridor
Sign in to your account to continue